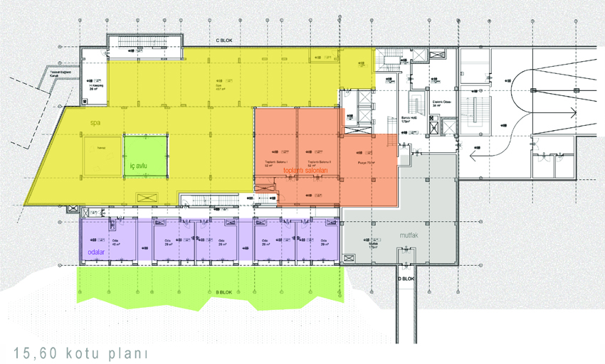
15.60 Kotu Planı
10/13
Paylaş
Resmi Orjinal Boyutunda Göster
Tekfen Yalıkavak Oteli
Proje Yeri: Muğla, Bodrum
Proje Ofisi: TRafo-Mimarlar
Proje Tipi: Otel / Motel
Tasarım Ekibi: Deniz Aslan, Suna Birsen Otay, Sevim Aslan
İşveren: Tekfen-Oz
Danışman: İpek Yürekli, Arda İnceoğlu
Yardımcı: Ceren Hancıoğlu, Kemal Özmen, Esin Gümüş
İç Mekan Projesi: Toner Mimarlık
Proje Başlangıç Yılı: 2006
Proje Bitiş Yılı: 2007
İnşaat Başlangıç Yılı: 2007
İnşaat Bitiş Yılı: 2008
Arsa Alanı: 12.000 m2
Toplam İnşaat Alanı: 11.250 m²