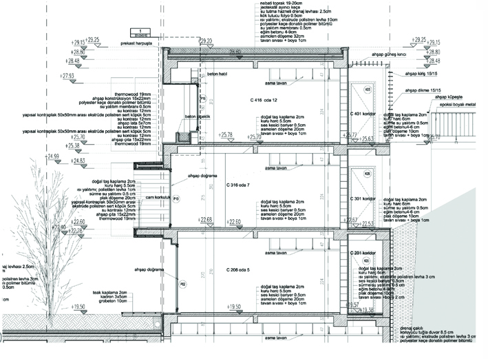
Kesit
13/13
Paylaş
Resmi Orjinal Boyutunda Göster
Tekfen Yalıkavak Oteli
Project Location: Muğla, Bodrum
Project Office: TRafo-Mimarlar
Project Type: Hotel / Motel
Tasarım Ekibi: Deniz Aslan, Suna Birsen Otay, Sevim Aslan
Employer: Tekfen-Oz
Consultant: İpek Yürekli, Arda İnceoğlu
Yardımcı: Ceren Hancıoğlu, Kemal Özmen, Esin Gümüş
Interior Architecture: Toner Mimarlık
Project Start Date: 2006
Project End Date: 2007
Construction Start Date: 2007
Construction End Date: 2008
Building Plot Area: 12.000 m2
Total Construction Area: 11.250 m²