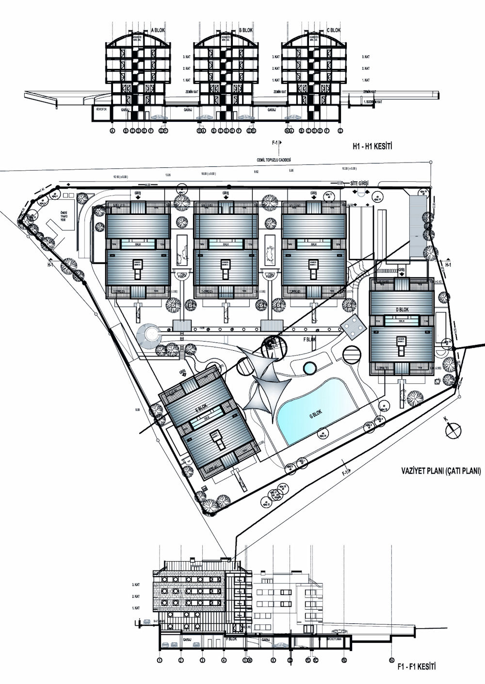
Vaziyet Planı
27/48
Paylaş
Resmi Orjinal Boyutunda Göster
Caddebostan Evleri
Project Location: Caddebostan, Kadıköy, İstanbul
Project Office: Ergün Mimarlık
Project Type: Housing Complex
Tasarım Ekibi: Ender Ergün, Servet Ünver, Eser Ergün
Employer: Polat İnşaat
Yardımcı: Feriha Ataer
Peyzaj Mimarlığı: Mürsel Selçuk, Himaş Yapı
Structural Project: Atilla Çaydamlı, Fonksiyon Mühendislik
Mechanical Project: Hasan Özoğul, Dinamik Proje Mühendislik
Electrical Project: Murat Büyükşahin, Mabaş Elektrik
Project Start Date: 2006
Project End Date: 2006
Construction Start Date: 2008
Construction End Date: 2009
Building Plot Area: 13.200 m²
Total Construction Area: 7.640 m²