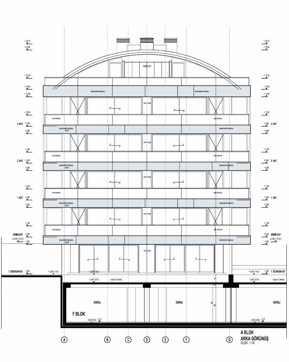
Güney Cephesi
35/48
Paylaş
Resmi Orjinal Boyutunda Göster
Caddebostan Evleri
Proje Yeri: Caddebostan, Kadıköy, İstanbul
Proje Ofisi: Ergün Mimarlık
Proje Tipi: Konut Sitesi / Grubu
Tasarım Ekibi: Ender Ergün, Servet Ünver, Eser Ergün
İşveren: Polat İnşaat
Yardımcı: Feriha Ataer
Peyzaj Mimarlığı: Mürsel Selçuk, Himaş Yapı
Statik Projesi: Atilla Çaydamlı, Fonksiyon Mühendislik
Mekanik Projesi: Hasan Özoğul, Dinamik Proje Mühendislik
Elektrik Projesi: Murat Büyükşahin, Mabaş Elektrik
Proje Başlangıç Yılı: 2006
Proje Bitiş Yılı: 2006
İnşaat Başlangıç Yılı: 2008
İnşaat Bitiş Yılı: 2009
Arsa Alanı: 13.200 m²
Toplam İnşaat Alanı: 7.640 m²