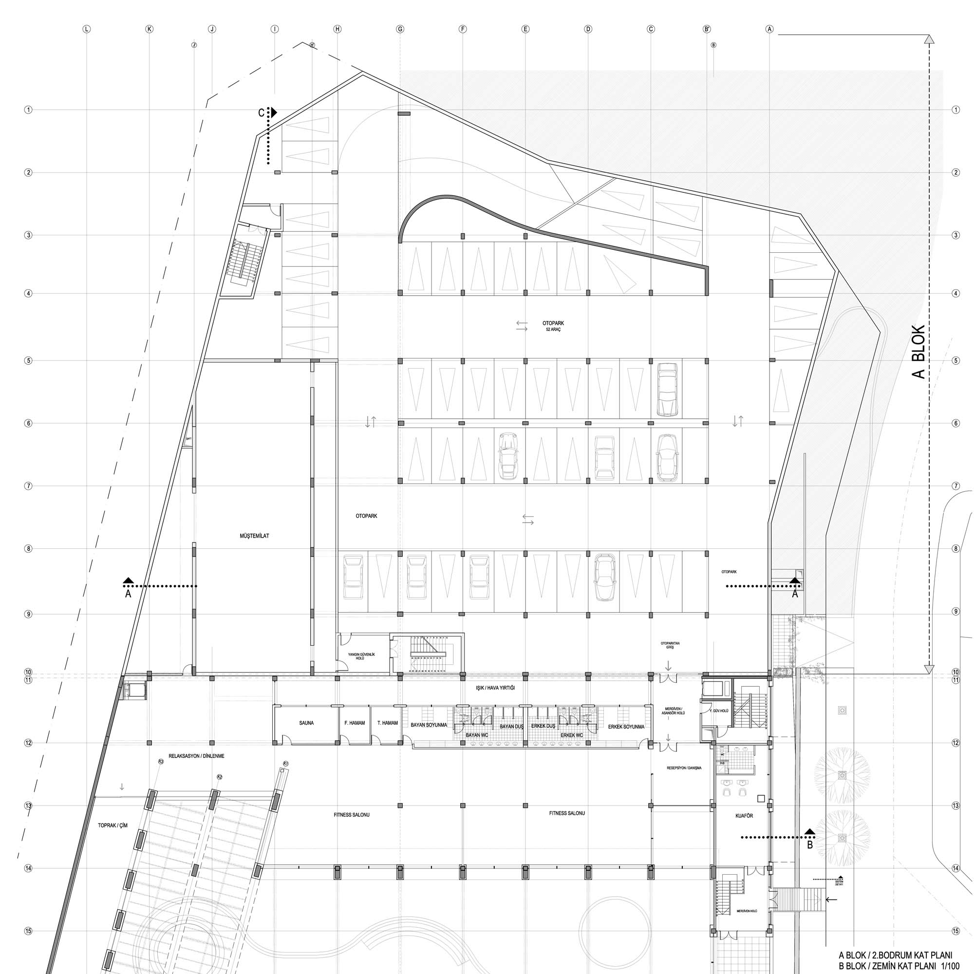
A BLOK-2. BODRUM KAT PLANI003
16/28
Paylaş
Resmi Orjinal Boyutunda Göster
Atakent Spor Kompleksi
Project Location: Ankara
Project Office: Tektonika Mimarlık
Project Type: Sports Hall
Tasarım Ekibi: Semra Teber Yener
Employer: SS Atakent KYK
Consultant: Ferhan Teber
Yardımcı: Figen Yücel
Interior Architecture: Semra Teber Yener
Structural Project: Danyal Kubin
Mechanical Project: Melih Özüner
Electrical Project: Kemal Güravşar
Project Start Date: 2005
Project End Date: 2007
Construction Start Date: 2008
Construction End Date: 2010
Building Plot Area: 27.000 m2
Total Construction Area: 13.000 m²