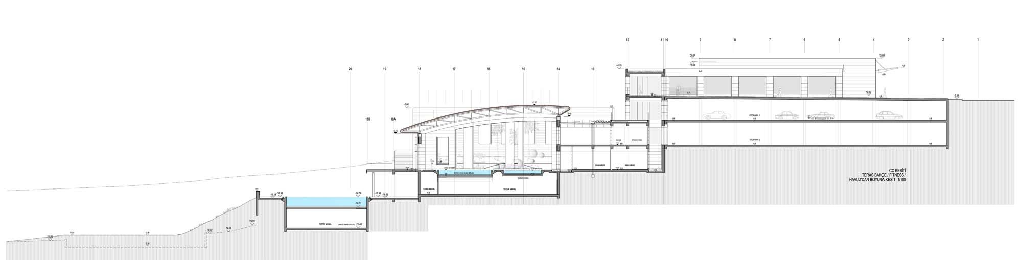
BOYUNA KESİT009
24/28
Paylaş
Resmi Orjinal Boyutunda Göster
Atakent Spor Kompleksi
Proje Yeri: Ankara
Proje Ofisi: Tektonika Mimarlık
Proje Tipi: Spor Salonu
Tasarım Ekibi: Semra Teber Yener
İşveren: SS Atakent KYK
Danışman: Ferhan Teber
Yardımcı: Figen Yücel
İç Mekan Projesi: Semra Teber Yener
Statik Projesi: Danyal Kubin
Mekanik Projesi: Melih Özüner
Elektrik Projesi: Kemal Güravşar
Proje Başlangıç Yılı: 2005
Proje Bitiş Yılı: 2007
İnşaat Başlangıç Yılı: 2008
İnşaat Bitiş Yılı: 2010
Arsa Alanı: 27.000 m2
Toplam İnşaat Alanı: 13.000 m²