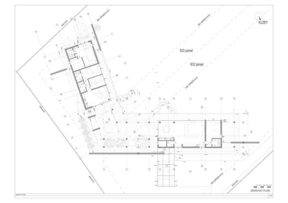
Zemin Kat Planı
8/19
Paylaş
Resmi Orjinal Boyutunda Göster
Akhisar Evi
Proje Yeri: Manisa
Proje Ofisi: Boran Ekinci Mimarlık
Proje Tipi: Tek Ev / Villa
Tasarım Ekibi: Handenur Yazıcı Engin, Boran Ekinci
İşveren: Kemal Kantar
Yardımcı: Sasan Sahafi
Ana Yüklenici: Ontan Mühendislik
Statik Projesi: Nodus Mühendislik
Mekanik Projesi: Selçuk Kay
Elektrik Projesi: Cuma Üzüm
Proje Başlangıç Yılı: 2010
Proje Bitiş Yılı: 2010
İnşaat Başlangıç Yılı: 2010
İnşaat Bitiş Yılı: 2010
Arsa Alanı: 8.900 m2
Toplam İnşaat Alanı: 300 m²