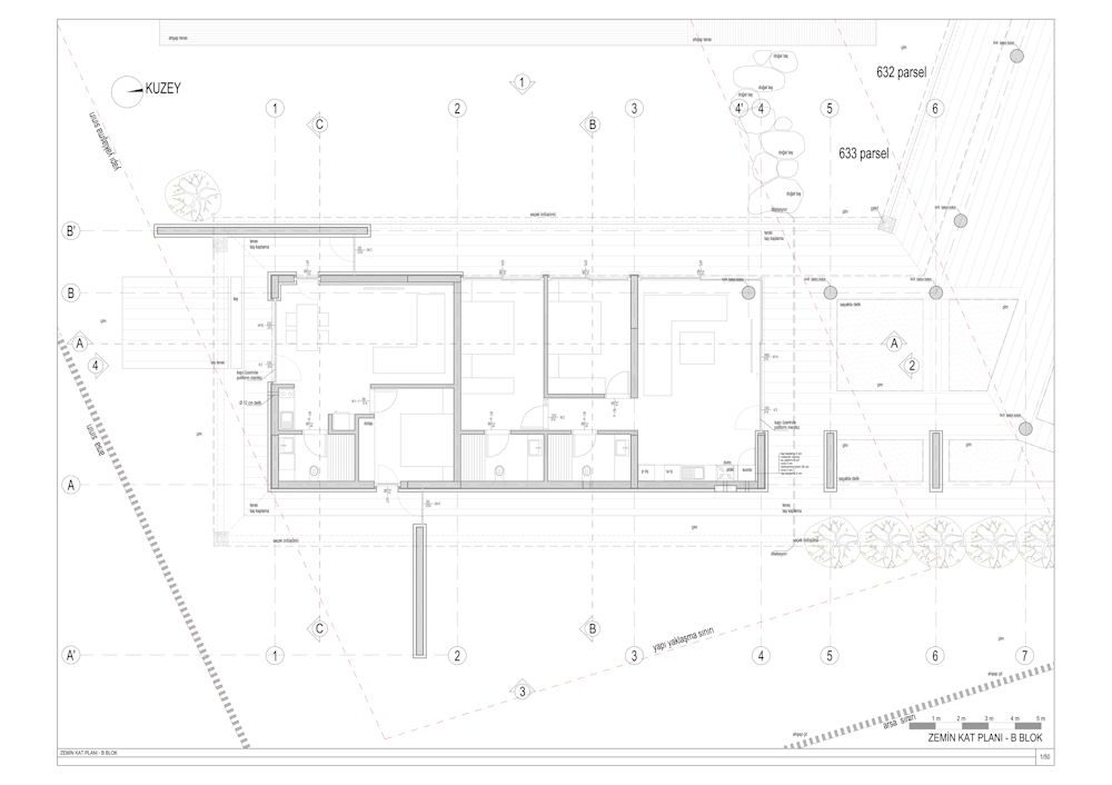
B Blok Zemin Kat Planı
9/19
Paylaş
Resmi Orjinal Boyutunda Göster
Akhisar Evi
Project Location: Manisa
Project Office: Boran Ekinci Mimarlık
Project Type: Single House
Tasarım Ekibi: Handenur Yazıcı Engin, Boran Ekinci
Employer: Kemal Kantar
Yardımcı: Sasan Sahafi
Ana Yüklenici: Ontan Mühendislik
Structural Project: Nodus Mühendislik
Mechanical Project: Selçuk Kay
Electrical Project: Cuma Üzüm
Project Start Date: 2010
Project End Date: 2010
Construction Start Date: 2010
Construction End Date: 2010
Building Plot Area: 8.900 m2
Total Construction Area: 300 m²