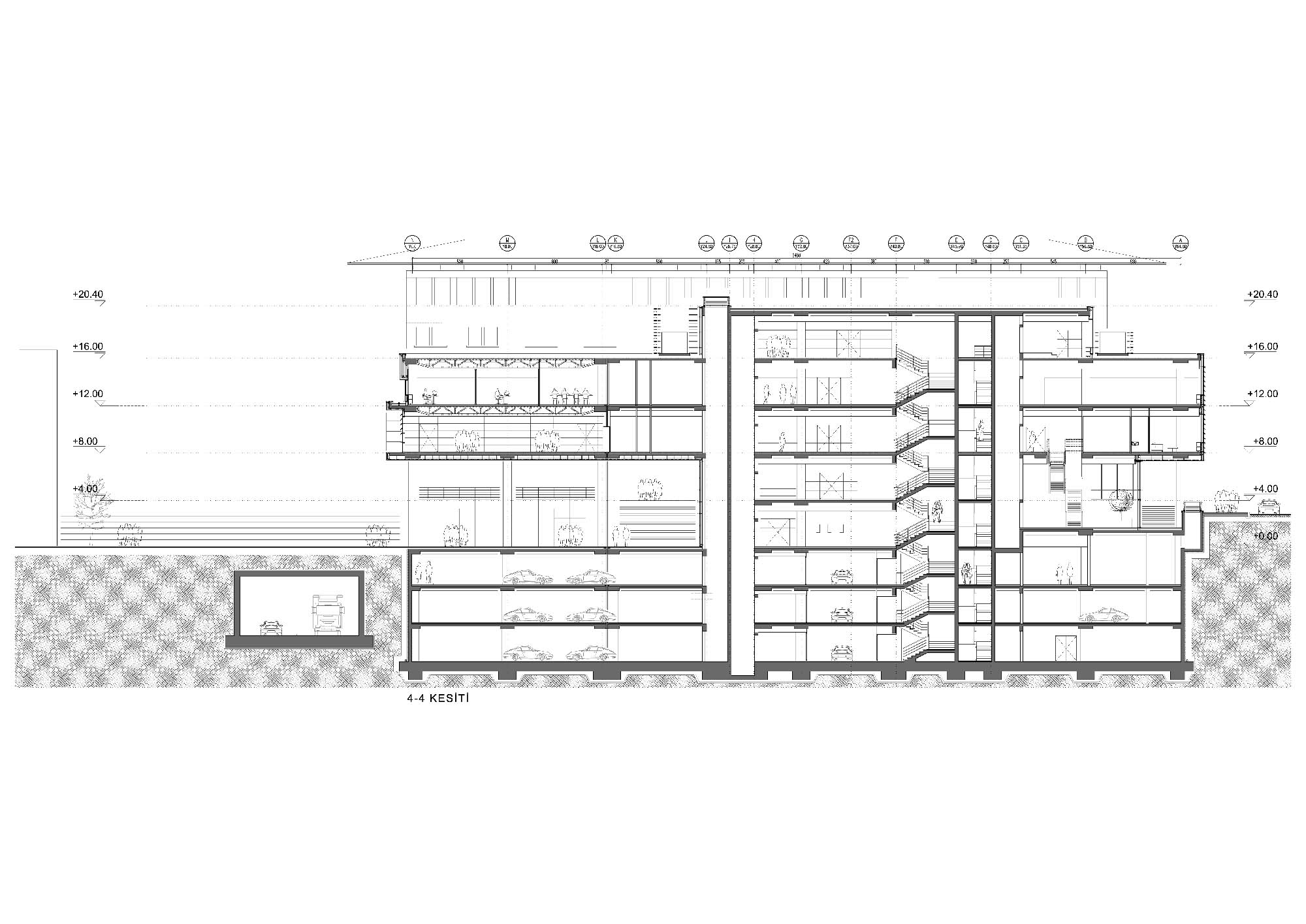
009aGM-K01-4-4007
31/39
Paylaş
Resmi Orjinal Boyutunda Göster
Trabzon Belediyesi Hizmet Binası
Project Location: Trabzon
Project Office: MTF Proje (Mimari Tasarım Fikirleri)
Project Type: Belediye Hizmet Binası
Tasarım Ekibi: Ozan Öztepe, Derya Ekim Öztepe
Employer: Trabzon Büyükşehir Belediyesi
Yardımcı: Deniz Çubukçu, Betül Karanfil
Ana Yüklenici: Varlıbaş Holding
Peyzaj Mimarlığı: PTM
Interior Architecture: MTF Proje (Mimari Tasarım Fikirleri)
Structural Project: Feyzi Marzioğlu
Mechanical Project: Akım Mühendislik
Electrical Project: Esan Mühendislik
Project Start Date: 2007
Project End Date: 2007
Construction Start Date: 2008
Construction End Date: 2010
Building Plot Area: 6.000 m²
Total Construction Area: 25.000 m2