009bGM-P06-belediye014
35/39
Paylaş
Resmi Orjinal Boyutunda Göster
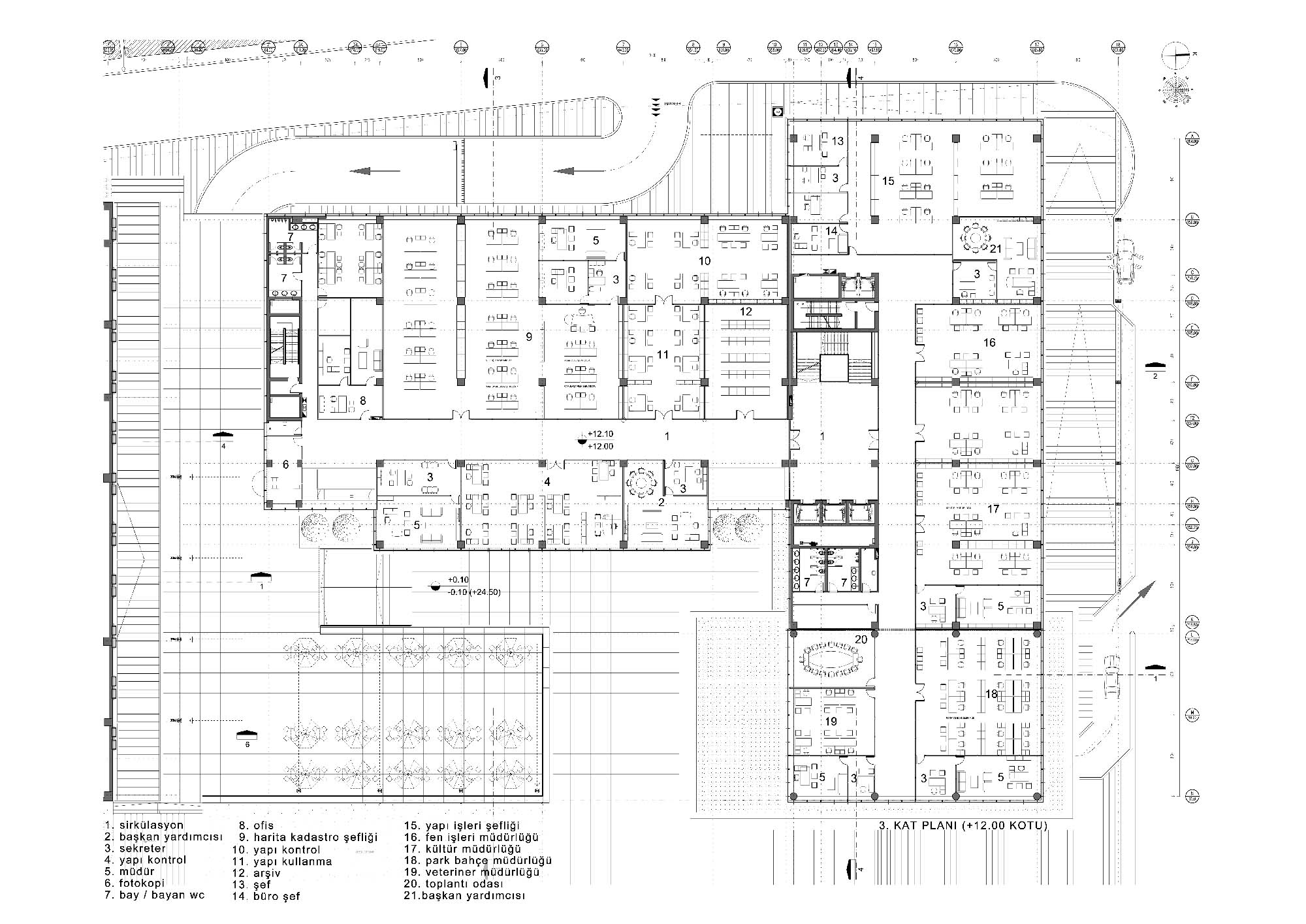
Trabzon Belediyesi Hizmet Binası
Proje Yeri: Trabzon
Proje Ofisi: MTF Proje (Mimari Tasarım Fikirleri)
Proje Tipi: Belediye Hizmet Binası
Tasarım Ekibi: Ozan Öztepe, Derya Ekim Öztepe
İşveren: Trabzon Büyükşehir Belediyesi
Yardımcı: Deniz Çubukçu, Betül Karanfil
Ana Yüklenici: Varlıbaş Holding
Peyzaj Mimarlığı: PTM
İç Mekan Projesi: MTF Proje (Mimari Tasarım Fikirleri)
Statik Projesi: Feyzi Marzioğlu
Mekanik Projesi: Akım Mühendislik
Elektrik Projesi: Esan Mühendislik
Proje Başlangıç Yılı: 2007
Proje Bitiş Yılı: 2007
İnşaat Başlangıç Yılı: 2008
İnşaat Bitiş Yılı: 2010
Arsa Alanı: 6.000 m²
Toplam İnşaat Alanı: 25.000 m2