009bGM-P03-avm009
49/55
Paylaş
Resmi Orjinal Boyutunda Göster
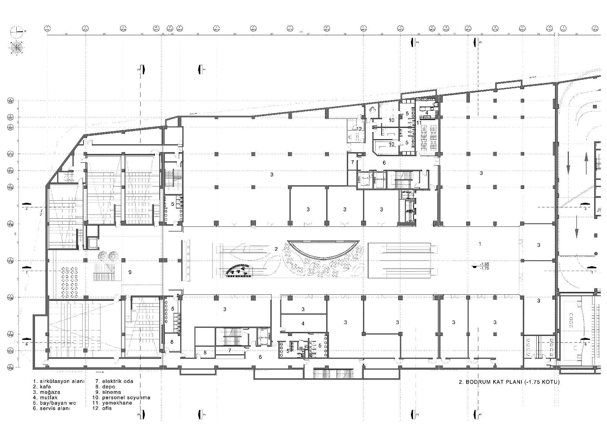
Varlıbaş Atapark Alışveriş ve Yaşam Merkezi
Proje Yeri: Trabzon
Proje Ofisi: MTF Proje (Mimari Tasarım Fikirleri)
Proje Tipi: Alışveriş Merkezi
Tasarım Ekibi: Ozan Öztepe, Derya Ekim Öztepe
İşveren: Varlıbaş Holding
Yardımcı: Deniz Çubukçu, Betül Karanfil
Peyzaj Mimarlığı: PTM
İç Mekan Projesi: MTF Proje (Mimari Tasarım Fikirleri)
Statik Projesi: Kuram Mühendislik
Mekanik Projesi: Akım Mühendislik
Elektrik Projesi: Esan Mühendislik
Proje Başlangıç Yılı: 2008
Proje Bitiş Yılı: 2008
İnşaat Başlangıç Yılı: 2008
İnşaat Bitiş Yılı: 2010
Arsa Alanı: 6.000 m²
Toplam İnşaat Alanı: 55.000 m²