009bGM-P05-avm011
51/55
Paylaş
Resmi Orjinal Boyutunda Göster
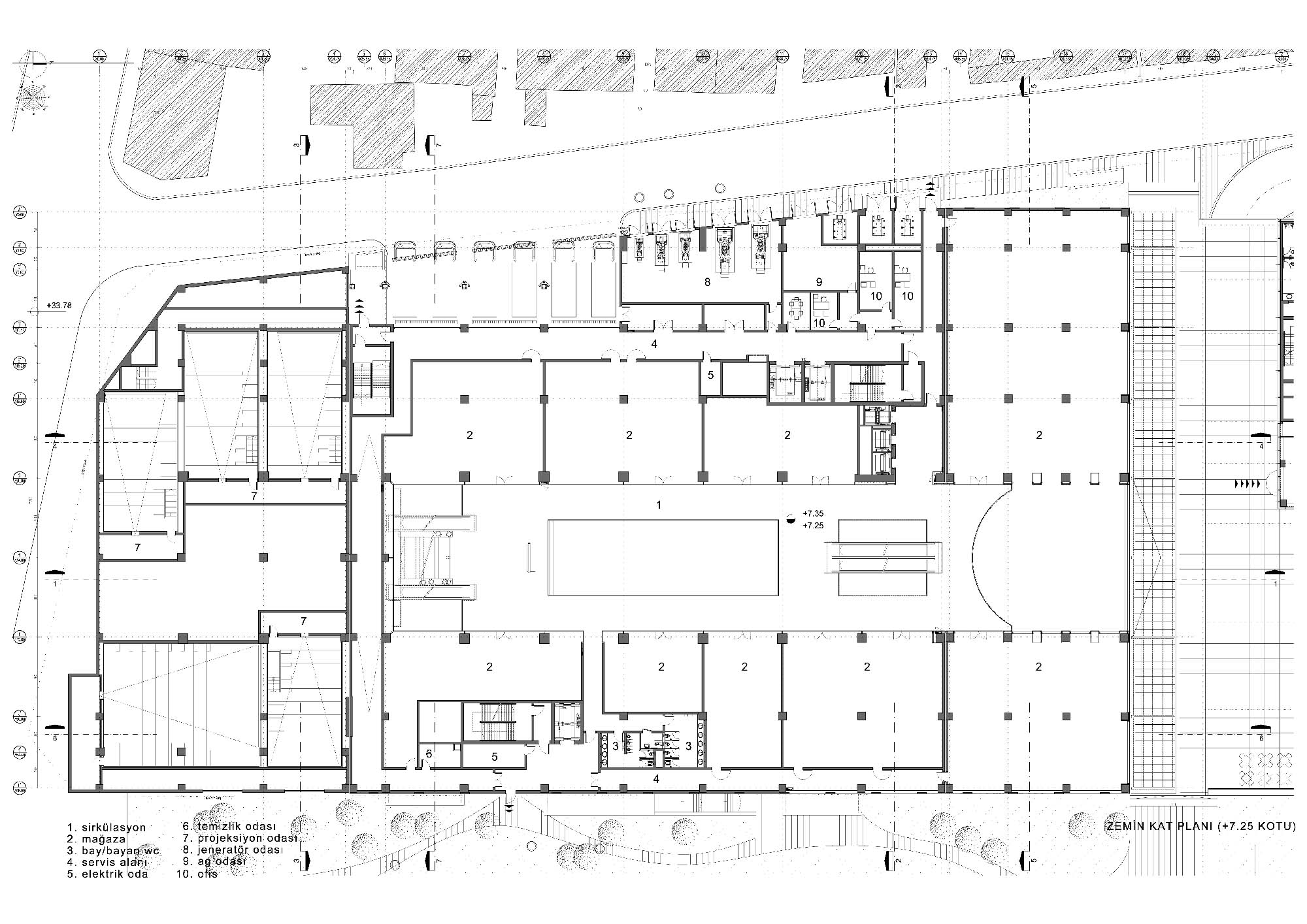
Varlıbaş Atapark Alışveriş ve Yaşam Merkezi
Project Location: Trabzon
Project Office: MTF Proje (Mimari Tasarım Fikirleri)
Project Type: Shopping Mall
Tasarım Ekibi: Ozan Öztepe, Derya Ekim Öztepe
Employer: Varlıbaş Holding
Yardımcı: Deniz Çubukçu, Betül Karanfil
Peyzaj Mimarlığı: PTM
Interior Architecture: MTF Proje (Mimari Tasarım Fikirleri)
Structural Project: Kuram Mühendislik
Mechanical Project: Akım Mühendislik
Electrical Project: Esan Mühendislik
Project Start Date: 2008
Project End Date: 2008
Construction Start Date: 2008
Construction End Date: 2010
Building Plot Area: 6.000 m²
Total Construction Area: 55.000 m²