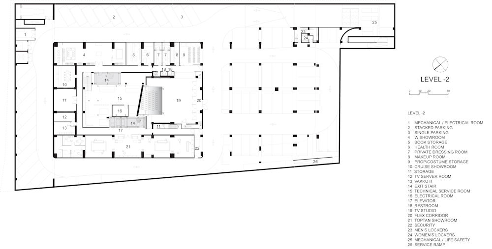
2. Bodrum Kat Planı
49/79
Paylaş
Resmi Orjinal Boyutunda Göster
Vakko Moda ve Power Medya Merkezi
Project Location: İstanbul
Project Office: REX Architecture
Project Type: Offices
Tasarım Ekibi: Erez Ella, Tomas Janka, Mathias Madaus, David Menicovich, Tsuyoshi Nakamoto, Joshua Prince-Ramus, Ishtiaq Rafiuddin, Tieliu Wu
Employer: Vakko
Construction Start Date: 2009
Construction End Date: 2010
Total Construction Area: 9.100 m2