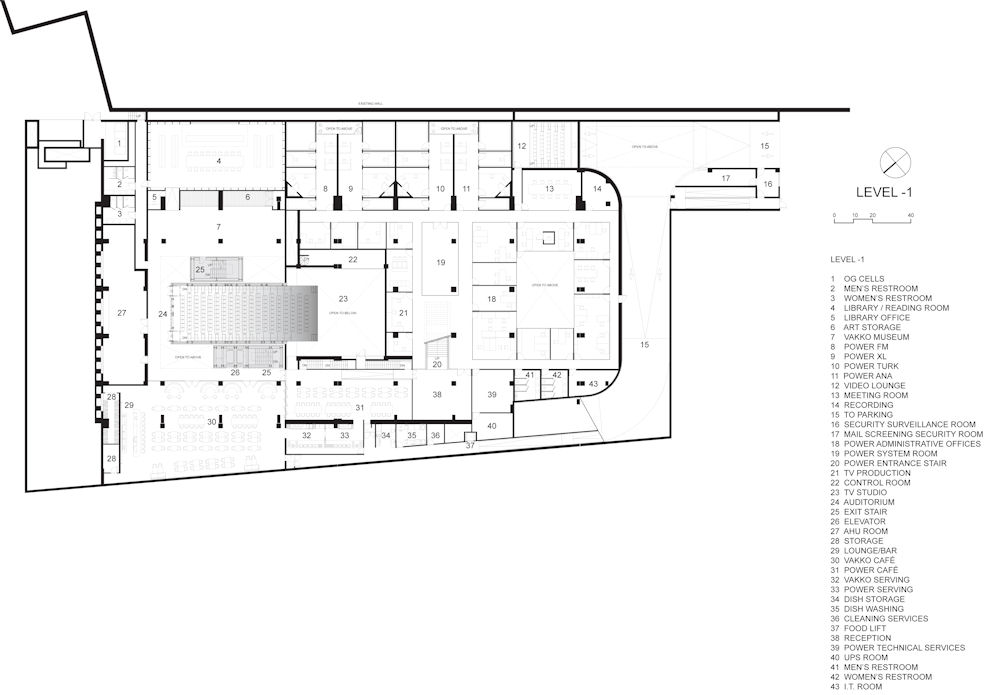
1. Bodrum Kat Planı
50/79
Paylaş
Resmi Orjinal Boyutunda Göster
Vakko Moda ve Power Medya Merkezi
Proje Yeri: İstanbul
Proje Ofisi: REX Architecture
Proje Tipi: Ofis
Tasarım Ekibi: Erez Ella, Tomas Janka, Mathias Madaus, David Menicovich, Tsuyoshi Nakamoto, Joshua Prince-Ramus, Ishtiaq Rafiuddin, Tieliu Wu
İşveren: Vakko
İnşaat Başlangıç Yılı: 2009
İnşaat Bitiş Yılı: 2010
Toplam İnşaat Alanı: 9.100 m2