01
21/25
Paylaş
Resmi Orjinal Boyutunda Göster
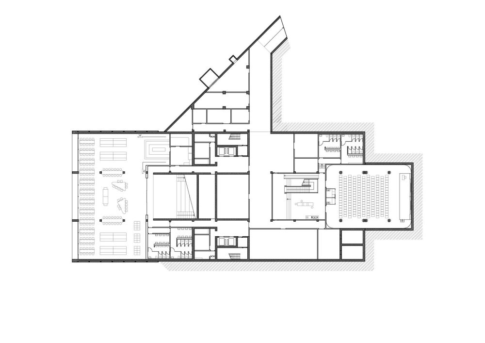
YKB Bankacılık Akademisi
Project Location: Kocaeli (İzmit)
Project Office: Teğet Mimarlık
Project Type: Offices, Other Education Buildings
Tasarım Ekibi: Ertuğ Uçar, Mehmet Kütükçüoğlu
Employer: Yapı Kredi Bankası
Yardımcı: Alev Dağlı, Mert Üçer, Elena Giugni, Tuberk Altuntaş
Project Start Date: 2008
Project End Date: 2008
Construction Start Date: 2009
Construction End Date: 2009
Total Construction Area: 9.500 m2