03
24/25
Paylaş
Resmi Orjinal Boyutunda Göster
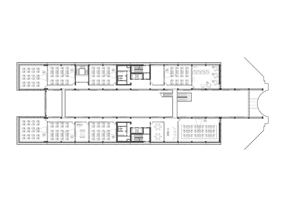
YKB Bankacılık Akademisi
Proje Yeri: Kocaeli (İzmit)
Proje Ofisi: Teğet Mimarlık
Proje Tipi: Ofis, Diğer Eğitim Yapıları
Tasarım Ekibi: Ertuğ Uçar, Mehmet Kütükçüoğlu
İşveren: Yapı Kredi Bankası
Yardımcı: Alev Dağlı, Mert Üçer, Elena Giugni, Tuberk Altuntaş
Proje Başlangıç Yılı: 2008
Proje Bitiş Yılı: 2008
İnşaat Başlangıç Yılı: 2009
İnşaat Bitiş Yılı: 2009
Toplam İnşaat Alanı: 9.500 m2