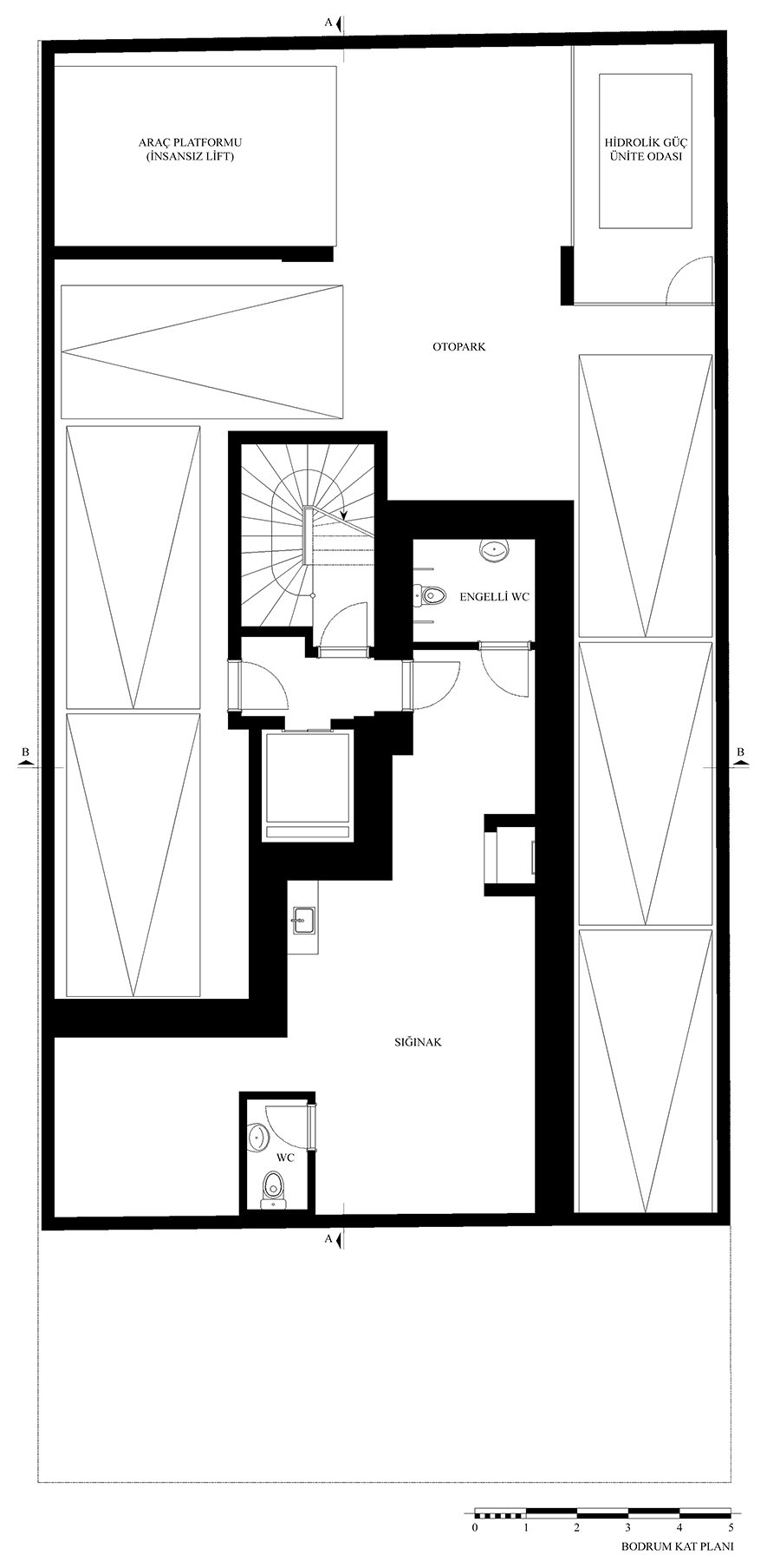
Bodrum Kat Planı
2/7
Paylaş
Resmi Orjinal Boyutunda Göster
Baysak 3 İş Merkezi
Project Location: Alsancak, İzmir
Project Office: Arkayın Mimarlık
Project Type: Offices
Tasarım Ekibi: Tufan Arkayın
Employer: Terbay İnşaat
Interior Architecture: Tufan Arkayın
Projcet Manager: Tufan Arkayın
Structural Project: Ergun Dinçer
Mechanical Project: Özan Parlar
Photography: Tufan Arkayın
Project Start Date: 2007
Project End Date: 2007
Construction Start Date: 2008
Construction End Date: 2009
Total Construction Area: 1250 m²