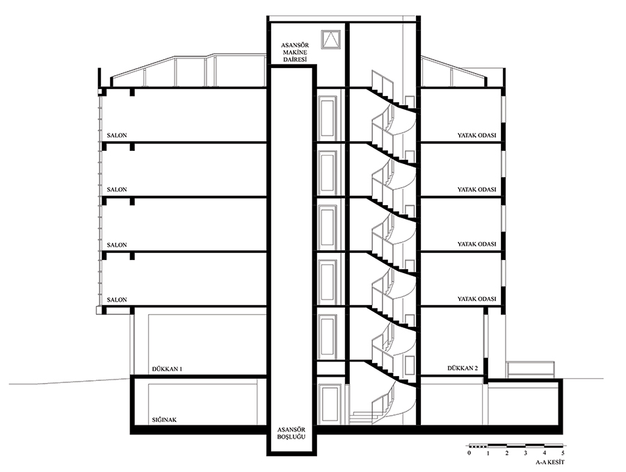
A-A Kesiti
5/7
Paylaş
Resmi Orjinal Boyutunda Göster
Baysak 3 İş Merkezi
Proje Yeri: Alsancak, İzmir
Proje Ofisi: Arkayın Mimarlık
Proje Tipi: Ofis
Tasarım Ekibi: Tufan Arkayın
İşveren: Terbay İnşaat
İç Mekan Projesi: Tufan Arkayın
Proje Yöneticisi: Tufan Arkayın
Statik Projesi: Ergun Dinçer
Mekanik Projesi: Özan Parlar
Fotoğraf: Tufan Arkayın
Proje Başlangıç Yılı: 2007
Proje Bitiş Yılı: 2007
İnşaat Başlangıç Yılı: 2008
İnşaat Bitiş Yılı: 2009
Toplam İnşaat Alanı: 1250 m²