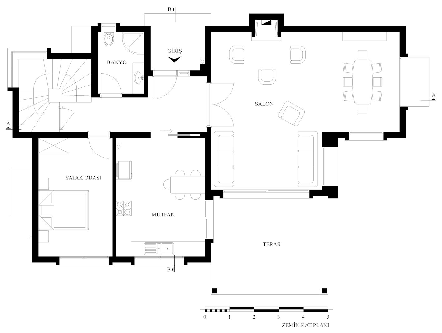
Zemin Kat Planı
11/19
Paylaş
Resmi Orjinal Boyutunda Göster
Ege Park Evleri
Proje Yeri: Güzelbahçe, İzmir
Proje Ofisi: Arkayın Mimarlık
Proje Tipi: Konut Sitesi / Grubu
Tasarım Ekibi: Tufan Arkayın
İşveren: Ascanbol İnşaat
Peyzaj Mimarlığı: İzmir Fidancılık
Proje Yöneticisi: Tufan Arkayın
Statik Projesi: Ertan Parlar
Mekanik Projesi: Özan Parlar
Elektrik Projesi: Ali Şenel
Proje Başlangıç Yılı: 2008
Proje Bitiş Yılı: 2008
İnşaat Başlangıç Yılı: 2009
İnşaat Bitiş Yılı: 2010
Arsa Alanı: 5250 m²
Toplam İnşaat Alanı: 3150 m²