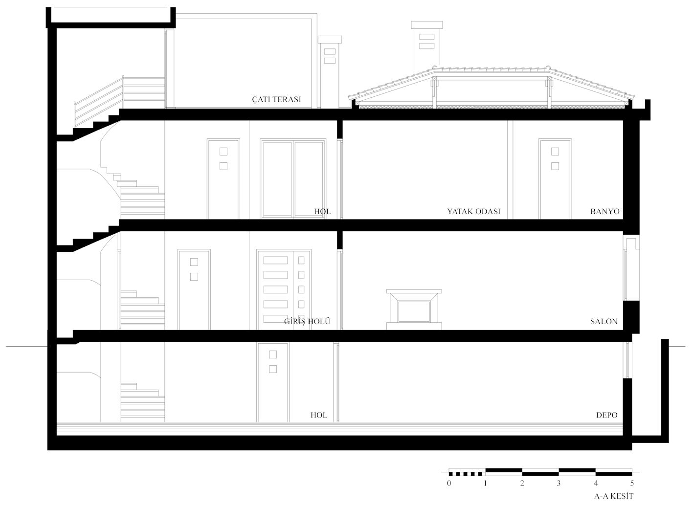
AA Kesiti
14/19
Paylaş
Resmi Orjinal Boyutunda Göster
Ege Park Evleri
Project Location: Güzelbahçe, İzmir
Project Office: Arkayın Mimarlık
Project Type: Housing Complex
Tasarım Ekibi: Tufan Arkayın
Employer: Ascanbol İnşaat
Peyzaj Mimarlığı: İzmir Fidancılık
Projcet Manager: Tufan Arkayın
Structural Project: Ertan Parlar
Mechanical Project: Özan Parlar
Electrical Project: Ali Şenel
Project Start Date: 2008
Project End Date: 2008
Construction Start Date: 2009
Construction End Date: 2010
Building Plot Area: 5250 m²
Total Construction Area: 3150 m²