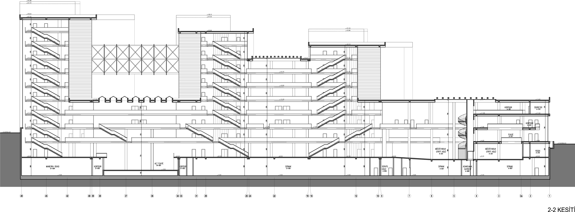
2-2 Kesiti
31/38
Paylaş
Resmi Orjinal Boyutunda Göster
TC MSB Savunma Sanayii Müşteşarlığı Yeni Hizmet Binası
Proje Yeri: Çankaya, Ankara
Proje Ofisi: Uz Mimarlık Atölyesi
Proje Tipi: Kamu Yönetim Binası
Proje Tipi Grubu: Kamu
Tasarım Ekibi: Mehmet Soylu, Mete Öz
İşveren: TC Milli Savunma Bakanlığı Savunma Sanayi Müşteşarlığı
Danışman: Tümaş Mermer
Yardımcı: Övünç Tarakçıoğlu, Neslihan Şen, Mine Güney, Emre Odabaş, Tuğçe Kurtboğan
Peyzaj Mimarlığı: Promim Çevre Düzenleme, Kentsel Tasarım
İç Mekan Projesi: Uz Mimarlık Atölyesi, Tümer Onaran İç Mimarlık
Proje Yöneticisi: Övünç Tarakçıoğlu
Aydınlatma Projesi: Matris Mühendislik
Statik Projesi: Ural Mühendislik
Mekanik Projesi: Beşeli Mühendislik
Elektrik Projesi: Matris Mühendislik
Fotoğraf: Murat Sönmez
Proje Başlangıç Yılı: 2006
Proje Bitiş Yılı: 2007
İnşaat Başlangıç Yılı: 2010
İnşaat Bitiş Yılı: 2012
Arsa Alanı: 16.000 m²
Toplam İnşaat Alanı: 51.000 m²