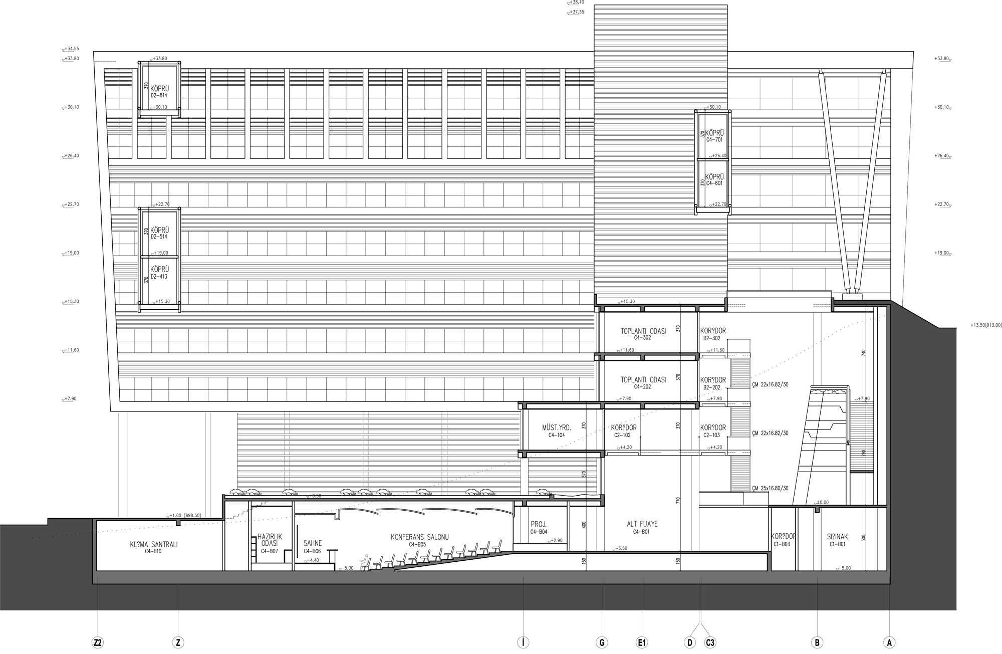
5-5 Kesiti
34/38
Paylaş
Resmi Orjinal Boyutunda Göster
TC MSB Savunma Sanayii Müşteşarlığı Yeni Hizmet Binası
Project Location: Çankaya, Ankara
Project Office: Uz Mimarlık Atölyesi
Project Type: Public Administration Building
Proje Tipi Grubu: Kamu
Tasarım Ekibi: Mehmet Soylu, Mete Öz
Employer: TC Milli Savunma Bakanlığı Savunma Sanayi Müşteşarlığı
Consultant: Tümaş Mermer
Yardımcı: Övünç Tarakçıoğlu, Neslihan Şen, Mine Güney, Emre Odabaş, Tuğçe Kurtboğan
Peyzaj Mimarlığı: Promim Çevre Düzenleme, Kentsel Tasarım
Interior Architecture: Uz Mimarlık Atölyesi, Tümer Onaran İç Mimarlık
Projcet Manager: Övünç Tarakçıoğlu
Lighting Project: Matris Mühendislik
Structural Project: Ural Mühendislik
Mechanical Project: Beşeli Mühendislik
Electrical Project: Matris Mühendislik
Photography: Murat Sönmez
Project Start Date: 2006
Project End Date: 2007
Construction Start Date: 2010
Construction End Date: 2012
Building Plot Area: 16.000 m²
Total Construction Area: 51.000 m²