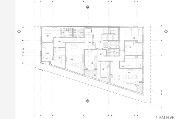
Birinci Kat Plani
6/8
Paylaş
Resmi Orjinal Boyutunda Göster
Göktürk U4
Proje Yeri: Göktürk, İstanbul
Proje Ofisi: CM Mimarlık
Proje Tipi: Konut Sitesi / Grubu
Tasarım Ekibi: Cem Sorguç
İşveren: Uçar Gayrimenkul
Yardımcı: Özlem Yılmaz, Deniz Gezgin, Sezin Ergene
Proje Yöneticisi: Uçar Gayrimenkul, CM Mimarlık
Aydınlatma Projesi: CM Mimarlık
Statik Projesi: AYS Mühendislik
Mekanik Projesi: Özgün Mühendislik
Elektrik Projesi: Ergun Çaylak Mühendislik
Fotoğraf: Cemal Emden
Proje Başlangıç Yılı: 2011
Proje Bitiş Yılı: 2011
İnşaat Başlangıç Yılı: 2012
İnşaat Bitiş Yılı: 2012
Arsa Alanı: 374,9 m²
Toplam İnşaat Alanı: 1.868,15 m²