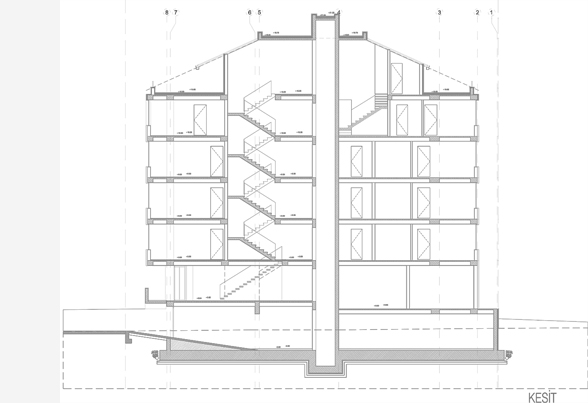
Kesit
7/8
Paylaş
Resmi Orjinal Boyutunda Göster
Göktürk U4
Project Location: Göktürk, İstanbul
Project Office: CM Mimarlık
Project Type: Housing Complex
Tasarım Ekibi: Cem Sorguç
Employer: Uçar Gayrimenkul
Yardımcı: Özlem Yılmaz, Deniz Gezgin, Sezin Ergene
Projcet Manager: Uçar Gayrimenkul, CM Mimarlık
Lighting Project: CM Mimarlık
Structural Project: AYS Mühendislik
Mechanical Project: Özgün Mühendislik
Electrical Project: Ergun Çaylak Mühendislik
Photography: Cemal Emden
Project Start Date: 2011
Project End Date: 2011
Construction Start Date: 2012
Construction End Date: 2012
Building Plot Area: 374,9 m²
Total Construction Area: 1.868,15 m²