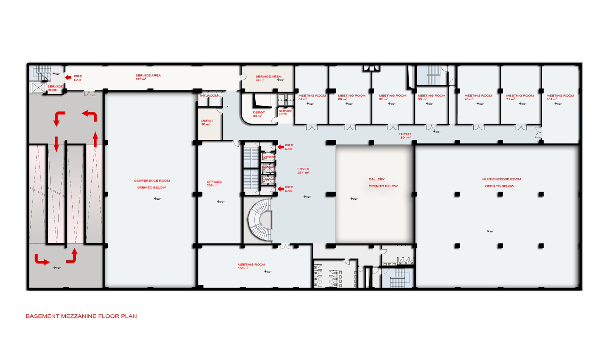
Kat Planı 1
11/21
Paylaş
Resmi Orjinal Boyutunda Göster
Double Tree By Hilton
Project Location: Avcılar, İstanbul
Project Office: Uras X Dilekci Mimarlık
Project Type: Hotel / Motel
Proje Tipi Grubu: Konaklama
Tasarım Ekibi: Durmuş Dilekci, Emir Uras
Architectural Project Team: Handan Akbudak, Aylin Ayvaz, Evren Karadeniz, Elvan Çakıt, Merve Toğru, Fikret Sungay
Employer: Sonkar Otomotiv
Yardımcı: Fikret Sungay, Handan Akbudak, Evren Alpay, Aylin Ayvaz, Elvan Çakıt, Merve Toğru
Structural Project: Yapı Teknik Mühendislik
Mechanical Project: Kılıç Mühendislik
Electrical Project: Esan Mühendislik
Project Start Date: 2007
Project End Date: 2010
Construction Start Date: 2010
Construction End Date: 2012
Building Plot Area: 4.224 m²
Total Construction Area: 25.042 m²