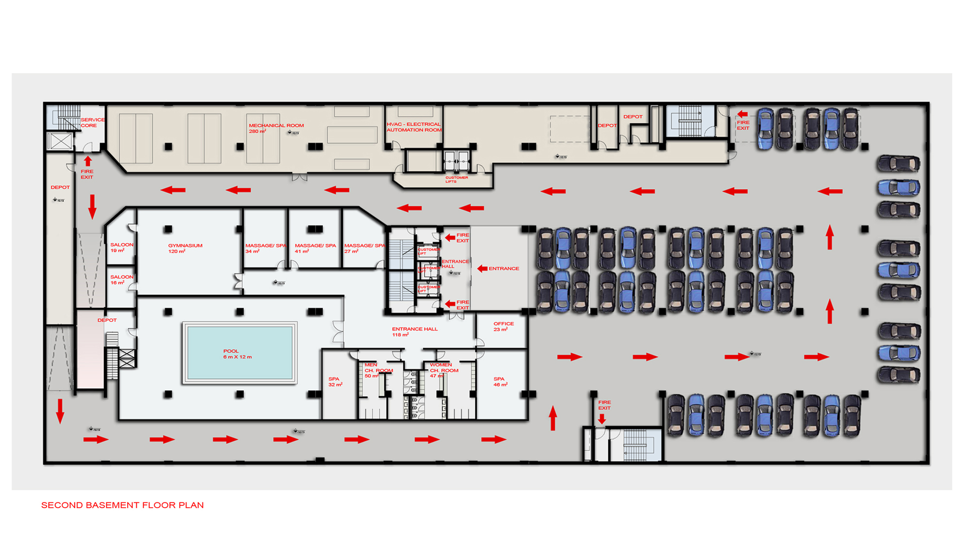
Kat Planı 3
13/21
Paylaş
Resmi Orjinal Boyutunda Göster
Double Tree By Hilton
Proje Yeri: Avcılar, İstanbul
Proje Ofisi: Uras X Dilekci Mimarlık
Proje Tipi: Otel / Motel
Proje Tipi Grubu: Konaklama
Tasarım Ekibi: Durmuş Dilekci, Emir Uras
Mimari Proje Ekibi: Handan Akbudak, Aylin Ayvaz, Evren Karadeniz, Elvan Çakıt, Merve Toğru, Fikret Sungay
İşveren: Sonkar Otomotiv
Yardımcı: Fikret Sungay, Handan Akbudak, Evren Alpay, Aylin Ayvaz, Elvan Çakıt, Merve Toğru
Statik Projesi: Yapı Teknik Mühendislik
Mekanik Projesi: Kılıç Mühendislik
Elektrik Projesi: Esan Mühendislik
Proje Başlangıç Yılı: 2007
Proje Bitiş Yılı: 2010
İnşaat Başlangıç Yılı: 2010
İnşaat Bitiş Yılı: 2012
Arsa Alanı: 4.224 m²
Toplam İnşaat Alanı: 25.042 m²