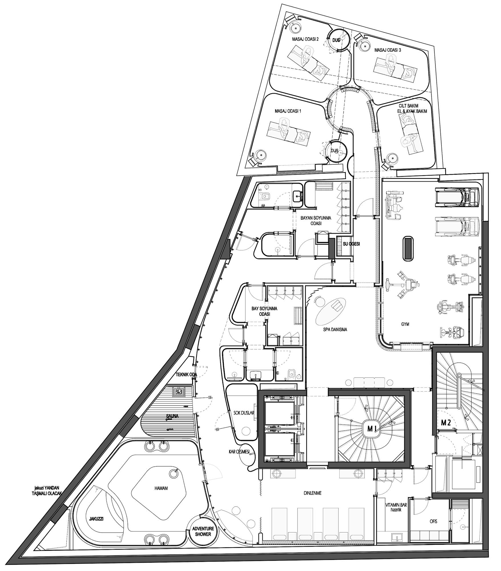
Bodrum kat
44/56
Paylaş
Resmi Orjinal Boyutunda Göster
Gezi Hotel Bosphorus
Proje Yeri: Taksim, İstanbul
Proje Ofisi: Metex Design Group
Proje Tipi: Otel / Motel
Proje Tipi Grubu: Konaklama
Tasarım Ekibi: Sinan Kafadar, Kağan Erk, Hüray Erk
İşveren: Atay Turizm
Yardımcı: Aslı Çakın Ünsal, Reyhan Suoğlu, Selen Gürsoy, Fatih Köstem, Ozan Falay, Pınar Tavıloğlu Arkan, Serpıl Kandişer, Devrım Göl, Emre Doğan, Faık Mercan, Müge Selen
İç Mekan Projesi: Metex Design Group
Statik Projesi: Probi İnşaat Proje
Mekanik Projesi: Demsa Group
Elektrik Projesi: Vemeks
Fotoğraf: Burak Olçaylı, BMC Production
Proje Başlangıç Yılı: 2009
Proje Bitiş Yılı: 2012
İnşaat Başlangıç Yılı: 2010
İnşaat Bitiş Yılı: 2012
Arsa Alanı: 316 m²
Toplam İnşaat Alanı: 3465 m²