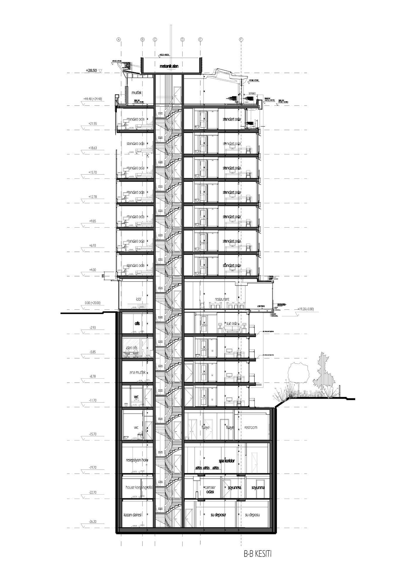
Kesit
56/56
Paylaş
Resmi Orjinal Boyutunda Göster
Gezi Hotel Bosphorus
Project Location: Taksim, İstanbul
Project Office: Metex Design Group
Project Type: Hotel / Motel
Proje Tipi Grubu: Konaklama
Tasarım Ekibi: Sinan Kafadar, Kağan Erk, Hüray Erk
Employer: Atay Turizm
Yardımcı: Aslı Çakın Ünsal, Reyhan Suoğlu, Selen Gürsoy, Fatih Köstem, Ozan Falay, Pınar Tavıloğlu Arkan, Serpıl Kandişer, Devrım Göl, Emre Doğan, Faık Mercan, Müge Selen
Interior Architecture: Metex Design Group
Structural Project: Probi İnşaat Proje
Mechanical Project: Demsa Group
Electrical Project: Vemeks
Photography: Burak Olçaylı, BMC Production
Project Start Date: 2009
Project End Date: 2012
Construction Start Date: 2010
Construction End Date: 2012
Building Plot Area: 316 m²
Total Construction Area: 3465 m²