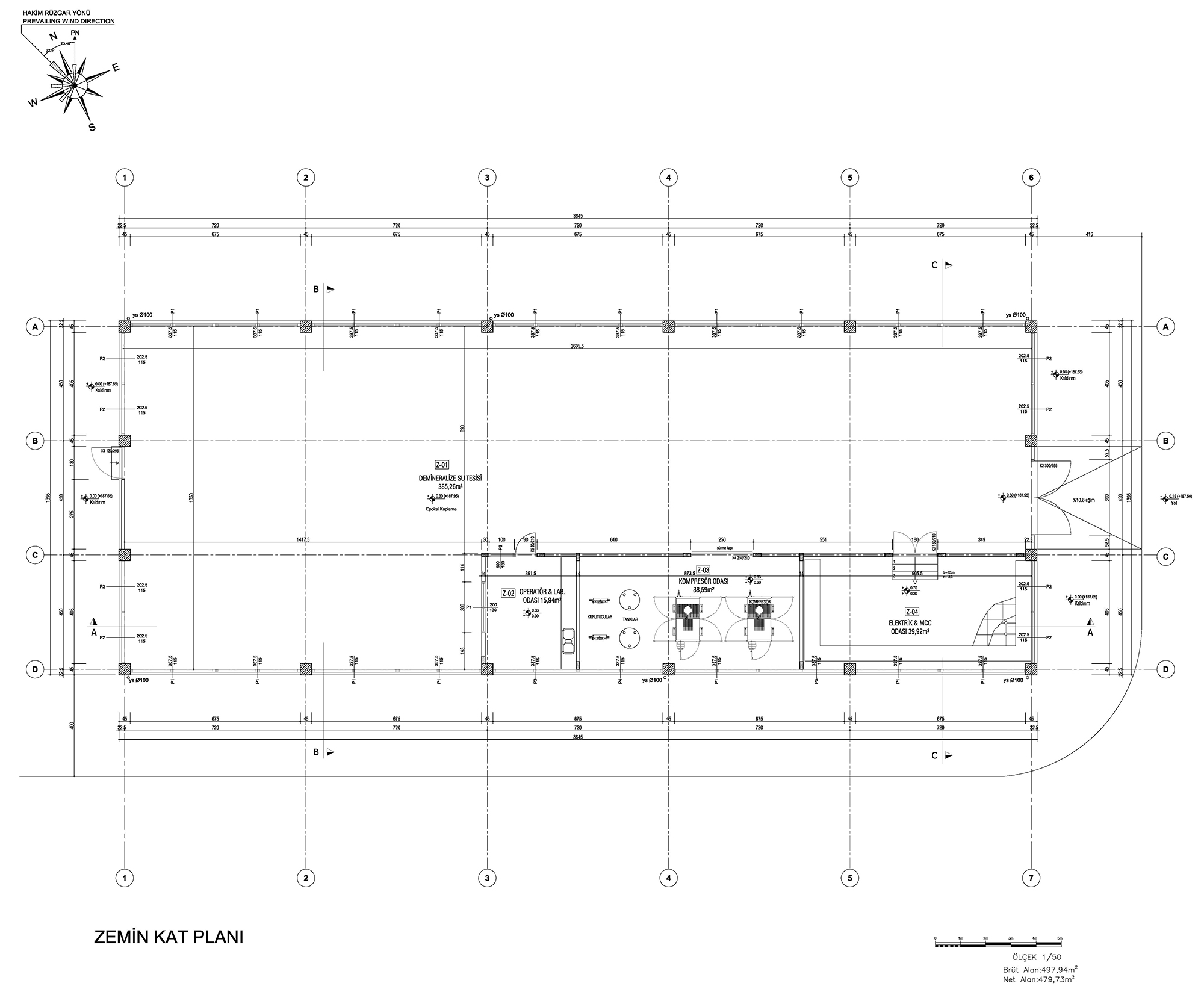
Zemin Kat Planı
26/32
Paylaş
Resmi Orjinal Boyutunda Göster
age denizli dgs - demineralize su binası
Fotoğraflar: Defne Önen
Proje Yeri: Sarayköy, Denizli
Proje Ofisi: Defne Önen Mimarlık
Proje Tipi: Diğer Endüstri Yapıları
Proje Tipi Grubu: Endüstriyel
Tasarım Ekibi: A. Defne Önen
İşveren: AGE Denizli Doğalgaz Elektrik Üretim AŞ
Statik Projesi: Depas Prefabrik
Fotoğraf: A. Defne Önen
Proje Başlangıç Yılı: 2011
Proje Bitiş Yılı: 2011
İnşaat Başlangıç Yılı: 2011
İnşaat Bitiş Yılı: 2012
Arsa Alanı: 1.600 m²
Toplam İnşaat Alanı: 500 m2