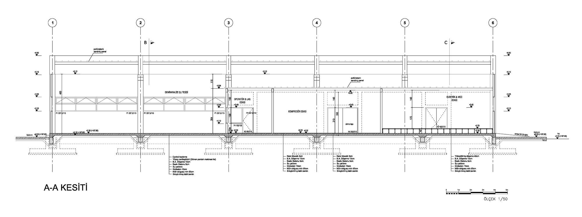
AA Kesiti
27/32
Paylaş
Resmi Orjinal Boyutunda Göster
age denizli dgs - demineralize su binası
Fotoğraflar: Defne Önen
Project Location: Sarayköy, Denizli
Project Office: Defne Önen Mimarlık
Project Type: Other Industrial Buildings
Proje Tipi Grubu: Endüstriyel
Tasarım Ekibi: A. Defne Önen
Employer: AGE Denizli Doğalgaz Elektrik Üretim AŞ
Structural Project: Depas Prefabrik
Photography: A. Defne Önen
Project Start Date: 2011
Project End Date: 2011
Construction Start Date: 2011
Construction End Date: 2012
Building Plot Area: 1.600 m²
Total Construction Area: 500 m2