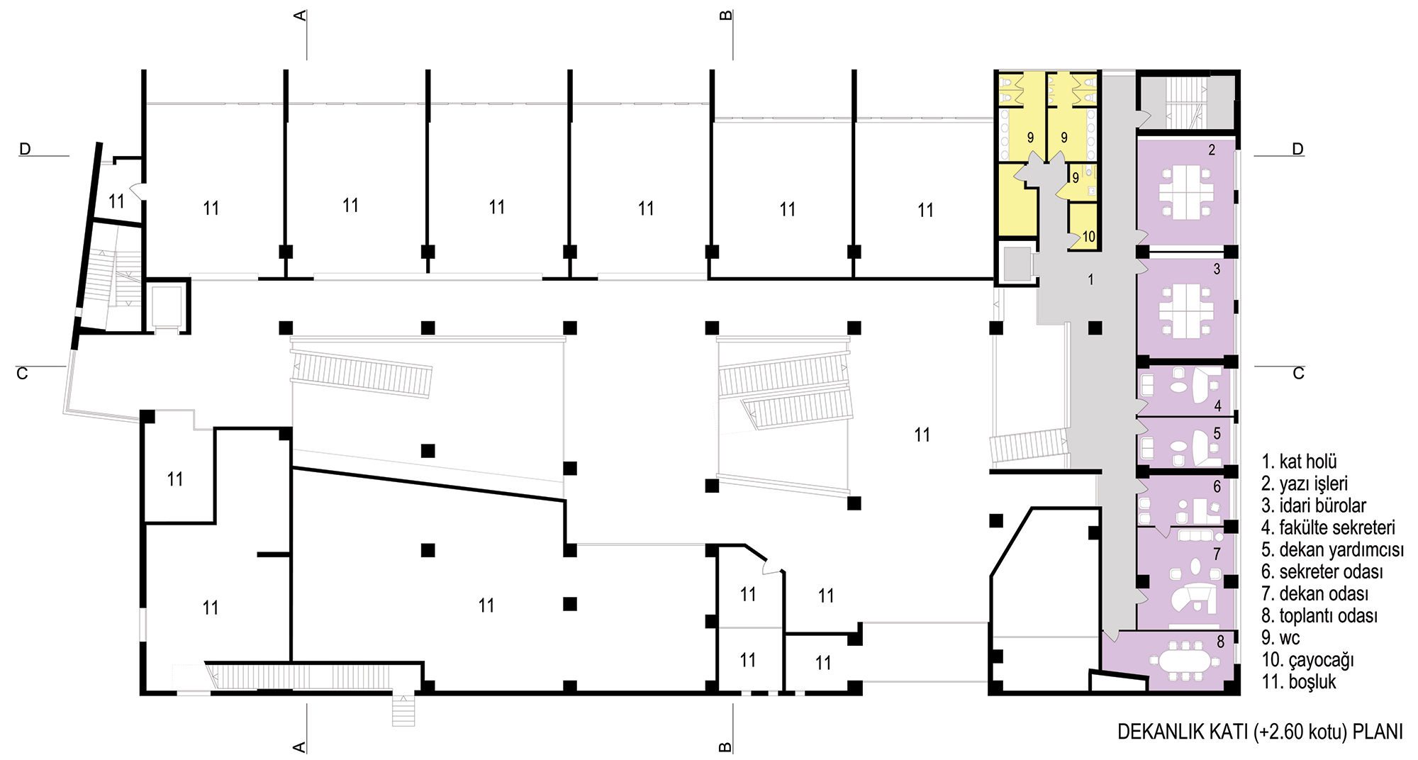
Dekanlık Kat Planı
25/39
Paylaş
Resmi Orjinal Boyutunda Göster
Bolu Abant İzzet Baysal Üniversitesi Güzel Sanatlar Fakültesi
Fotoğraflar: Erdal Sorgucu, Orhan Özgülbaş
Project Location: Bolu, Gölköy
Project Office: Atölye E Mimarlık
Tasarım Ekibi: Erdal Sorgucu
Yardımcı: Seçkin Akşit
Structural Project: Yüksel Konkan
Photography: Erdal Sorgucu, Orhan Özgülbaş
Project Start Date: 2008
Construction Start Date: 2009
Construction End Date: 2011
Building Plot Area: 4.000 m²
Total Construction Area: 10.704 m²