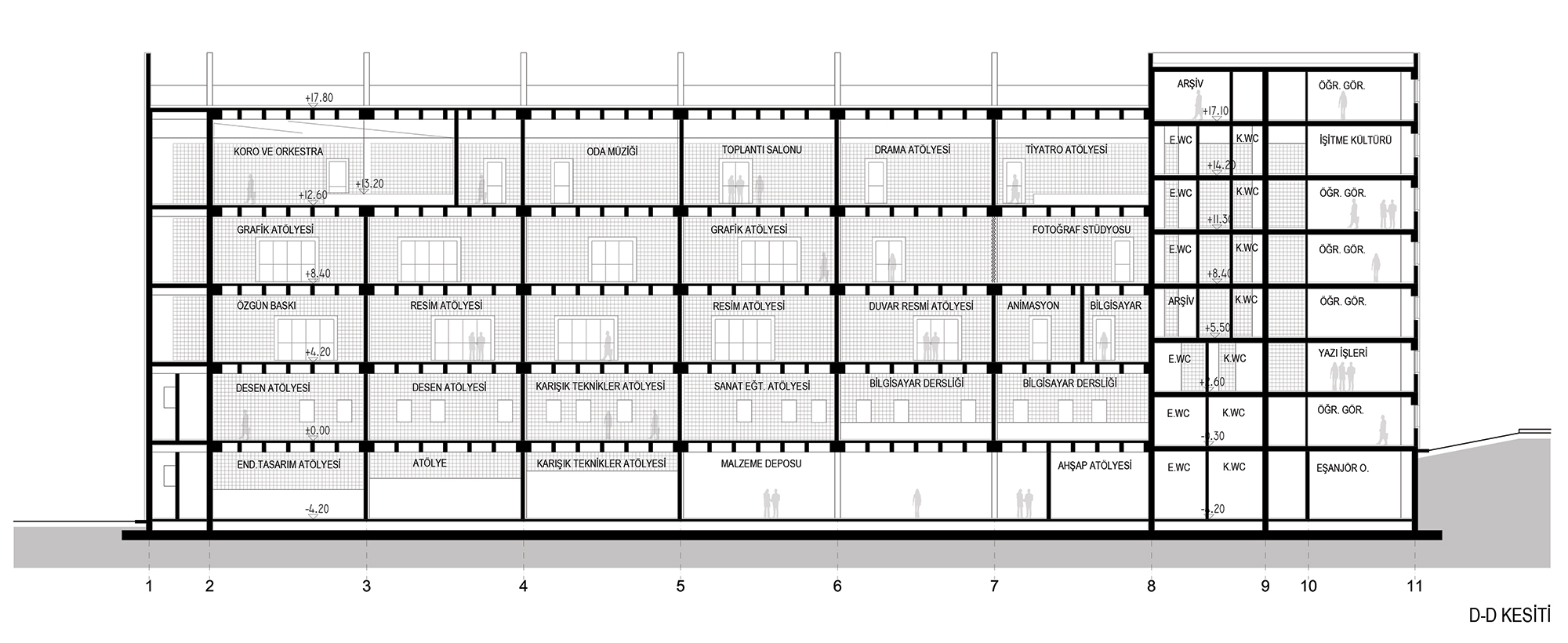
Kesit
35/39
Paylaş
Resmi Orjinal Boyutunda Göster
Bolu Abant İzzet Baysal Üniversitesi Güzel Sanatlar Fakültesi
Fotoğraflar: Erdal Sorgucu, Orhan Özgülbaş
Proje Yeri: Bolu, Gölköy
Proje Ofisi: Atölye E Mimarlık
Tasarım Ekibi: Erdal Sorgucu
Yardımcı: Seçkin Akşit
Statik Projesi: Yüksel Konkan
Fotoğraf: Erdal Sorgucu, Orhan Özgülbaş
Proje Başlangıç Yılı: 2008
İnşaat Başlangıç Yılı: 2009
İnşaat Bitiş Yılı: 2011
Arsa Alanı: 4.000 m²
Toplam İnşaat Alanı: 10.704 m²