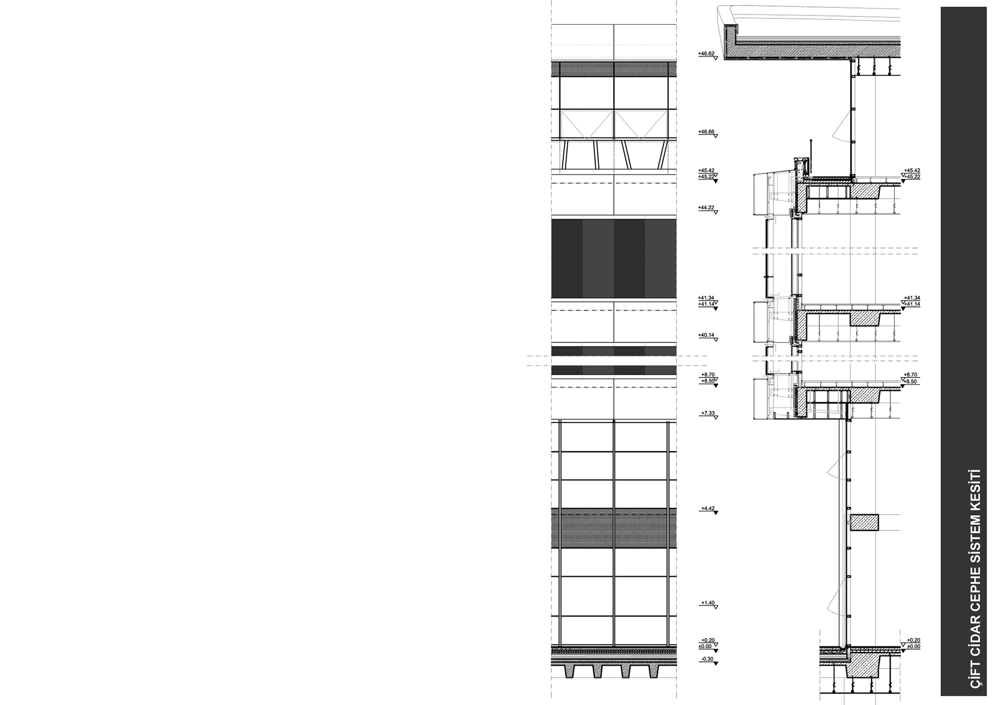
Detay
20/22
Paylaş
Resmi Orjinal Boyutunda Göster
İTÜ Arı Teknokent Arı 3 Binası
Proje Yeri: Maslak, Ayazağa, İstanbul
Proje Tipi: Ar-Ge Binası
Tasarım Ekibi: Hüseyin Kahvecioğlu, Melis Nur İhtiyar Varol, Cem Altun
İşveren: ARI Teknokent Proje Geliştirme Planlama AŞ
Danışman: Priedemann Cephe Danışmanlığı Tic.Ltd. Şti.
Yardımcı: Buket Metin, Gül Ertekin, Betonarme
Peyzaj Mimarlığı: Artıeksi Mekansal Tasarım, Dore Peyzaj
Proje Yöneticisi: Baran Tuzlacı
Statik Projesi: Seyaş Mimarlık
Mekanik Projesi: Arke Mühendislik
Elektrik Projesi: Öneren Proje ve Mühendislik
Fotoğraf: Ömer Kanıpak
Proje Başlangıç Yılı: 2008
Proje Bitiş Yılı: 2009
İnşaat Başlangıç Yılı: 2011
İnşaat Bitiş Yılı: 2012
Arsa Alanı: 20.000 m2
Toplam İnşaat Alanı: 50.800 m²