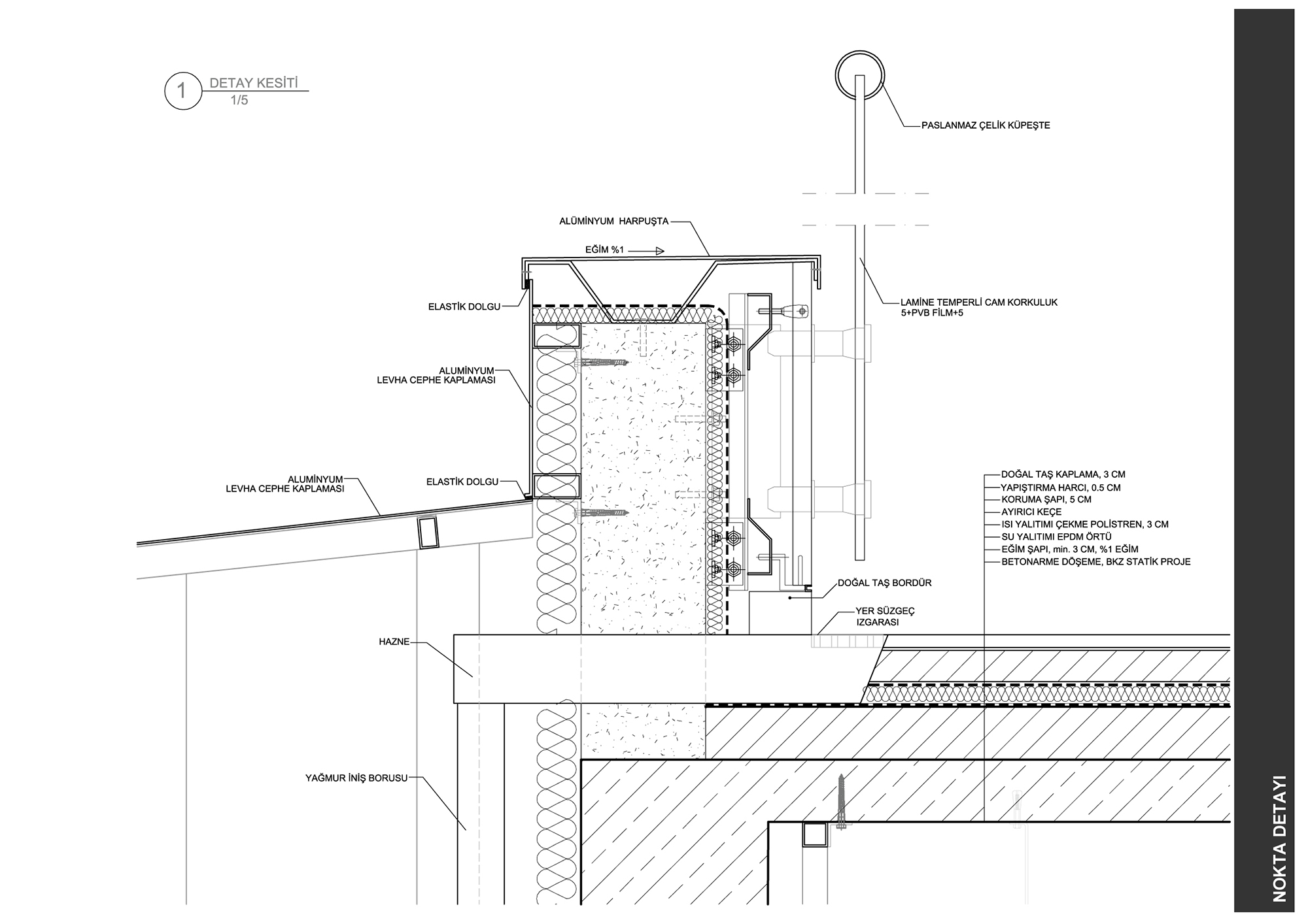
Detay
21/22
Paylaş
Resmi Orjinal Boyutunda Göster
İTÜ Arı Teknokent Arı 3 Binası
Project Location: Maslak, Ayazağa, İstanbul
Project Type: R&D Building
Tasarım Ekibi: Hüseyin Kahvecioğlu, Melis Nur İhtiyar Varol, Cem Altun
Employer: ARI Teknokent Proje Geliştirme Planlama AŞ
Consultant: Priedemann Cephe Danışmanlığı Tic.Ltd. Şti.
Yardımcı: Buket Metin, Gül Ertekin, Betonarme
Peyzaj Mimarlığı: Artıeksi Mekansal Tasarım, Dore Peyzaj
Projcet Manager: Baran Tuzlacı
Structural Project: Seyaş Mimarlık
Mechanical Project: Arke Mühendislik
Electrical Project: Öneren Proje ve Mühendislik
Photography: Ömer Kanıpak
Project Start Date: 2008
Project End Date: 2009
Construction Start Date: 2011
Construction End Date: 2012
Building Plot Area: 20.000 m2
Total Construction Area: 50.800 m²