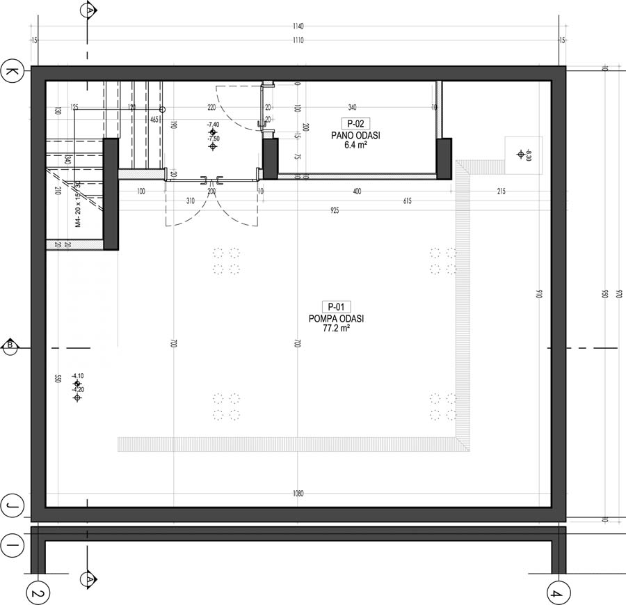
Pompa Binası Planı
14/20
Paylaş
Resmi Orjinal Boyutunda Göster
Dicle Vadisi Kültürpark Fiskaya Kafe ve Pompa Binası
Proje Yeri: Diyarbakır
Proje Ofisi: 8Artı Mimarlık ve Kentsel Tasarım
Proje Tipi: Restoran / Kafe / Bar
Tasarım Ekibi: Devrim Çimen
İşveren: Diyarbakır Büyükşehir Belediyesi
Yardımcı: Sevil Alkan, Türker Kesiktaş, Murat Kemal Aydoğmuş
Statik Projesi: Kenan Özbek
Mekanik Projesi: Ethem Özbakır
Elektrik Projesi: Kemal Güravşar
Tesisat Projesi: Ethem Özbakır
Proje Başlangıç Yılı: 2008
Proje Bitiş Yılı: 2009
İnşaat Başlangıç Yılı: 2010
İnşaat Bitiş Yılı: 2012
Arsa Alanı: 12100 m2
Toplam İnşaat Alanı: 1095 m2