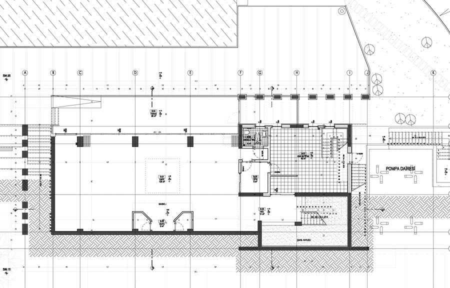
Zemin Kat Planı
9/20
Paylaş
Resmi Orjinal Boyutunda Göster
Dicle Vadisi Kültürpark Fiskaya Kafe ve Pompa Binası
Project Location: Diyarbakır
Project Office: 8Artı Mimarlık ve Kentsel Tasarım
Project Type: Restaurant / Café / Bar
Tasarım Ekibi: Devrim Çimen
Employer: Diyarbakır Büyükşehir Belediyesi
Yardımcı: Sevil Alkan, Türker Kesiktaş, Murat Kemal Aydoğmuş
Structural Project: Kenan Özbek
Mechanical Project: Ethem Özbakır
Electrical Project: Kemal Güravşar
Plumbing Project: Ethem Özbakır
Project Start Date: 2008
Project End Date: 2009
Construction Start Date: 2010
Construction End Date: 2012
Building Plot Area: 12100 m2
Total Construction Area: 1095 m2