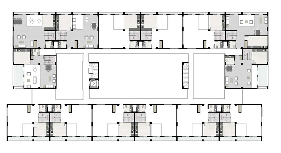
Plan
16/18
Paylaş
Resmi Orjinal Boyutunda Göster
Adolis Konutları
Project Location: Yaşamkent, Ankara
Project Office: CAG Mimarlık Atölyesi
Project Type: Housing Complex
Tasarım Ekibi: Celal Abdi Güzer
Employer: Adolis Konut Yapı Kooperatifi
Yardımcı: Aydın Işık
Peyzaj Mimarlığı: Oktan Nalbantoğlu
Structural Project: Sabri Kuşçu
Mechanical Project: Mehmet Özen
Electrical Project: Naim Toygar
Project Start Date: 2004
Construction Start Date: 2005
Construction End Date: 2007
Building Plot Area: 4.000 m²
Total Construction Area: 10.000 m²