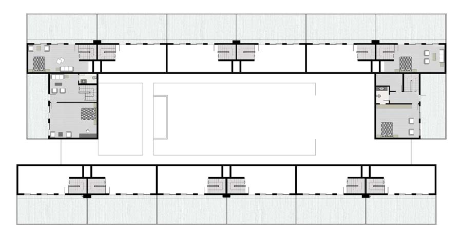
Plan
18/18
Paylaş
Resmi Orjinal Boyutunda Göster
Adolis Konutları
Proje Yeri: Yaşamkent, Ankara
Proje Ofisi: CAG Mimarlık Atölyesi
Proje Tipi: Konut Sitesi / Grubu
Tasarım Ekibi: Celal Abdi Güzer
İşveren: Adolis Konut Yapı Kooperatifi
Yardımcı: Aydın Işık
Peyzaj Mimarlığı: Oktan Nalbantoğlu
Statik Projesi: Sabri Kuşçu
Mekanik Projesi: Mehmet Özen
Elektrik Projesi: Naim Toygar
Proje Başlangıç Yılı: 2004
İnşaat Başlangıç Yılı: 2005
İnşaat Bitiş Yılı: 2007
Arsa Alanı: 4.000 m²
Toplam İnşaat Alanı: 10.000 m²