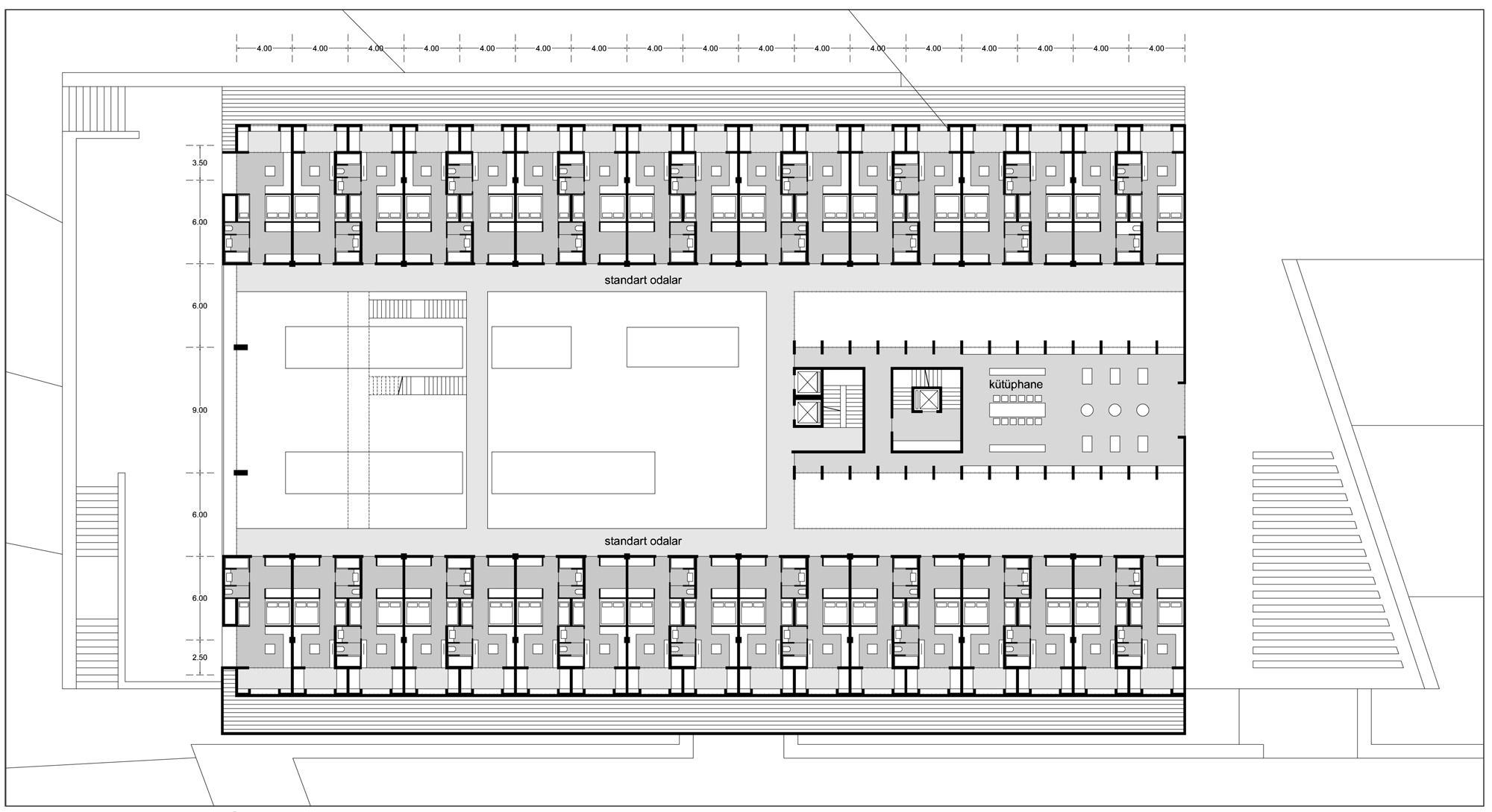
+10.00 Kotu Planı
11/17
Paylaş
Resmi Orjinal Boyutunda Göster
Teğet Mimarlık
Project Location: Kayseri
Project Office: Teğet Mimarlık
Project Type: Hotel / Motel
Proje Tipi Grubu: Katılımcı
Tasarım Ekibi: Mehmet Kütükçüoğlu, Ertuğ Uçar, Tuberk Altuntaş, Onur Akın, Mert Velipaşaoğlu, Emine Hande Ciğerli, Anja Visini, Gökçen Erkılıç