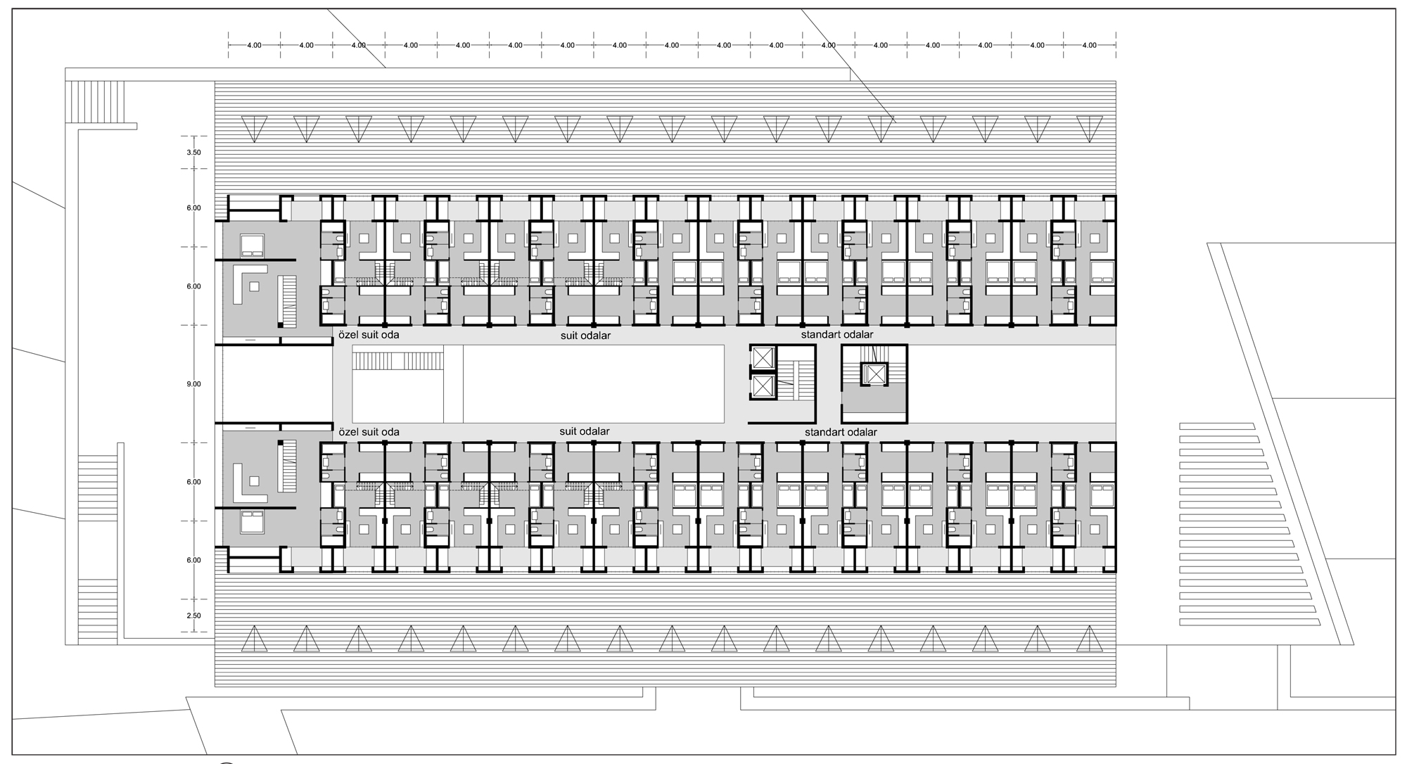
+13.60 Kotu Planı
12/17
Paylaş
Resmi Orjinal Boyutunda Göster
Teğet Mimarlık
Proje Yeri: Kayseri
Proje Ofisi: Teğet Mimarlık
Proje Tipi: Otel / Motel
Proje Tipi Grubu: Katılımcı
Tasarım Ekibi: Mehmet Kütükçüoğlu, Ertuğ Uçar, Tuberk Altuntaş, Onur Akın, Mert Velipaşaoğlu, Emine Hande Ciğerli, Anja Visini, Gökçen Erkılıç