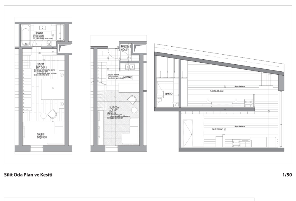
Süit Oda Plan ve Kesiti
20/29
Paylaş
Resmi Orjinal Boyutunda Göster
Bütüner Mimarlık
Project Location: Kayseri
Project Office: Bütüner Mimarlık
Project Type: Hotel / Motel
Proje Tipi Grubu: 1. Ödül
Tasarım Ekibi: Hüseyin Bütüner, Namık Erkal, Hikmet Pehlivan, Işıl Sencar Ertosun
Yardımcı: Gökhan Ongun, Burcu Bilgenoğlu Umur , Berna Malkamak Kayaçetin, Deniz Hıdıroğlu, Tülin Munzur, Cem Korkmaz