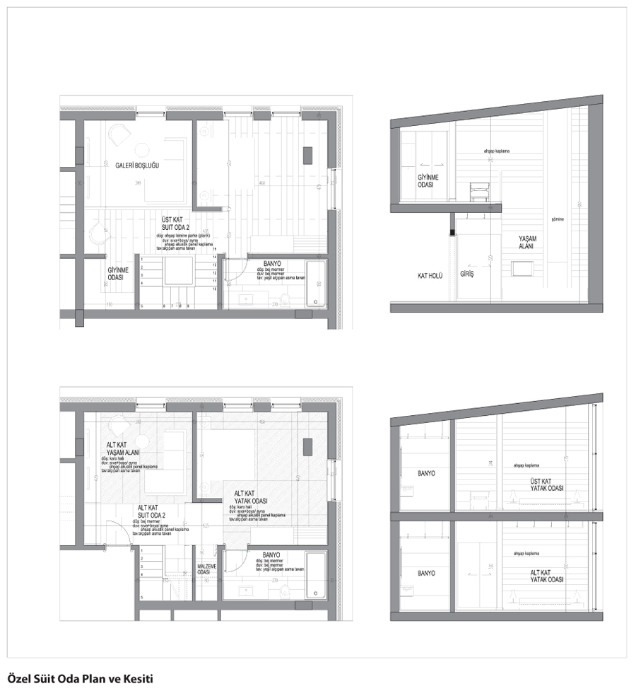
Özel Süit Oda Plan ve Kesiti
21/29
Paylaş
Resmi Orjinal Boyutunda Göster
Bütüner Mimarlık
Proje Yeri: Kayseri
Proje Ofisi: Bütüner Mimarlık
Proje Tipi: Otel / Motel
Proje Tipi Grubu: 1. Ödül
Tasarım Ekibi: Hüseyin Bütüner, Namık Erkal, Hikmet Pehlivan, Işıl Sencar Ertosun
Yardımcı: Gökhan Ongun, Burcu Bilgenoğlu Umur , Berna Malkamak Kayaçetin, Deniz Hıdıroğlu, Tülin Munzur, Cem Korkmaz