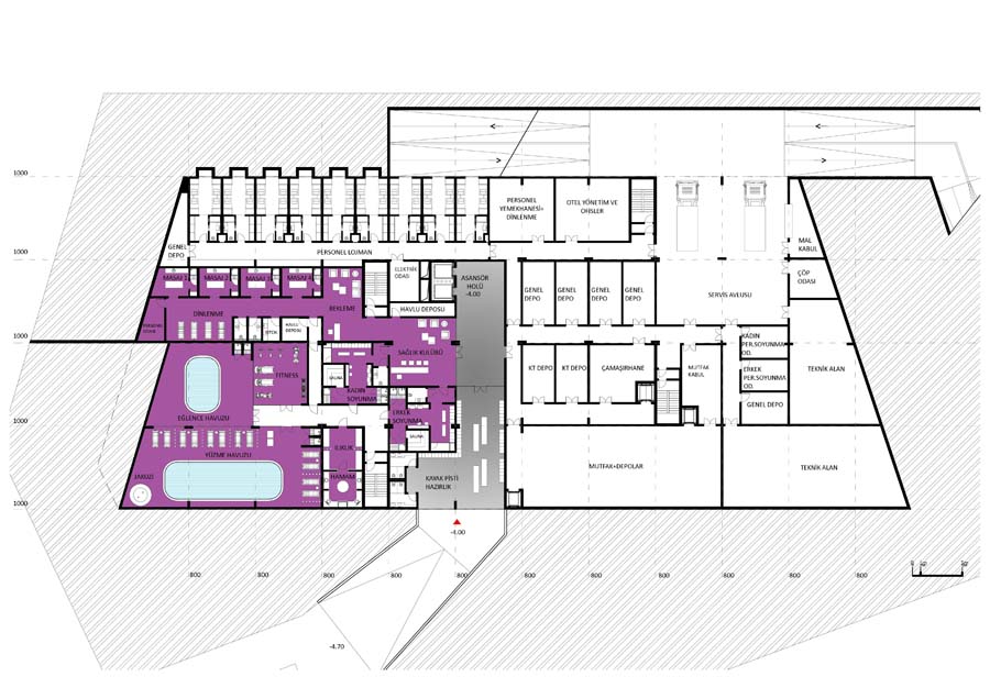
1. Bodrum Kat Planı - Sağlık Kulübü
18/27
Paylaş
Resmi Orjinal Boyutunda Göster
Kreatif Mimarlık 2
Project Location: Kayseri
Project Office: Kreatif Mimarlık
Project Type: Hotel / Motel
Proje Tipi Grubu: Katılımcı
Tasarım Ekibi: Aydan Volkan, Selim Cengiç, Erhan Yıldız, Mehmet Ziya Alpertong, Figen Aslan