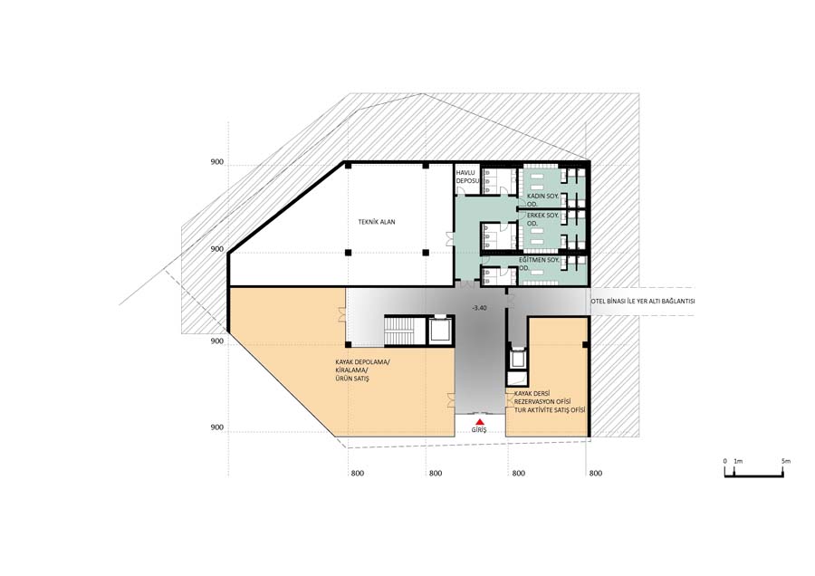
Günübirlik Bodrum Kat Planı
27/27
Paylaş
Resmi Orjinal Boyutunda Göster
Kreatif Mimarlık 2
Proje Yeri: Kayseri
Proje Ofisi: Kreatif Mimarlık
Proje Tipi: Otel / Motel
Proje Tipi Grubu: Katılımcı
Tasarım Ekibi: Aydan Volkan, Selim Cengiç, Erhan Yıldız, Mehmet Ziya Alpertong, Figen Aslan