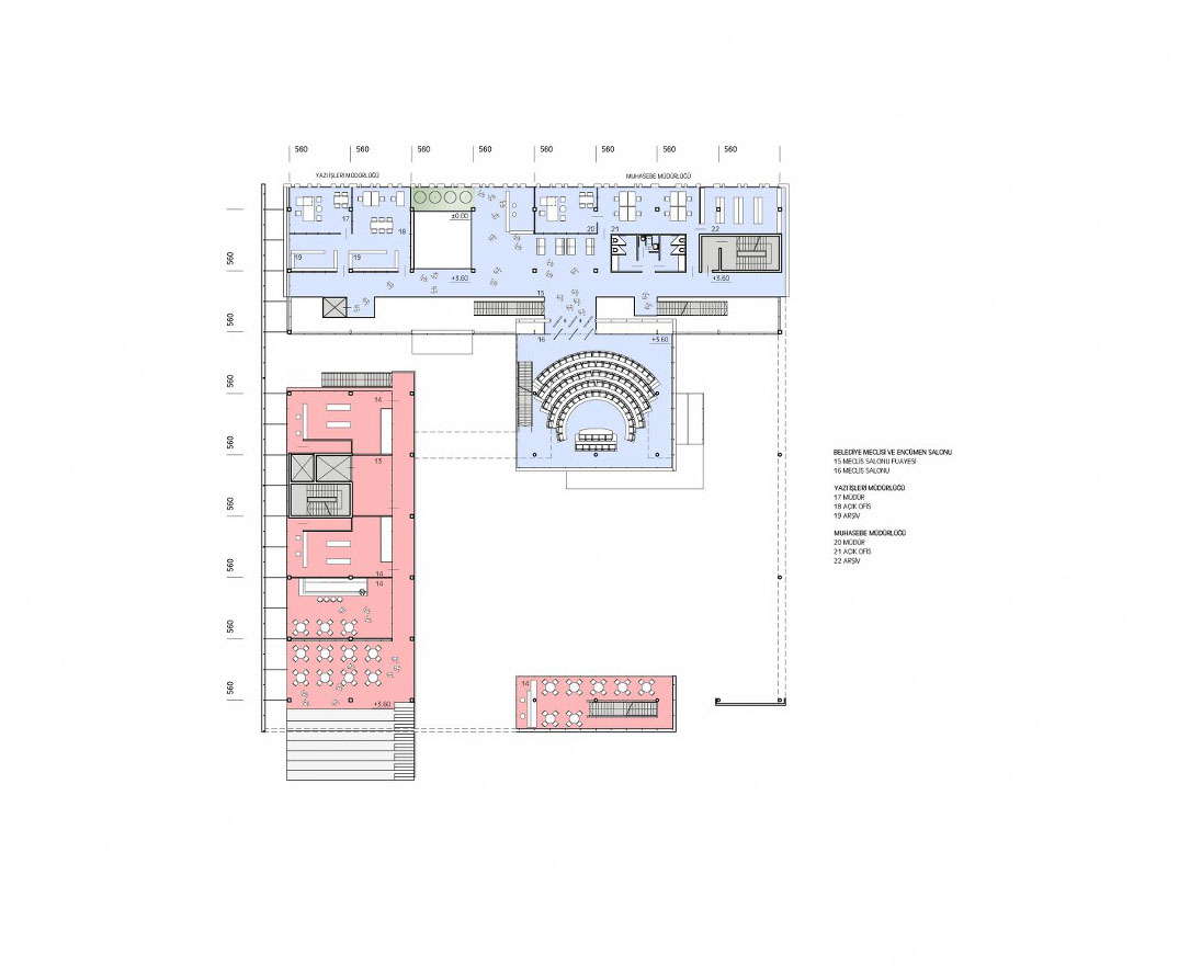
1.KAT PLANI
19/25
Paylaş
Resmi Orjinal Boyutunda Göster
Gazipaşa Belediye Hizmet Binası Yarışması - 2.Mansiyon
Project Location: Antalya
Project Office: SN Mimarlık
Project Type: Belediye Hizmet Binası
Proje Tipi Grubu: 2. Mansiyon
Tasarım Ekibi: Süleyman Akkaş, Nihal Şenkaya Akkaş
Yardımcı: Ceren Temel