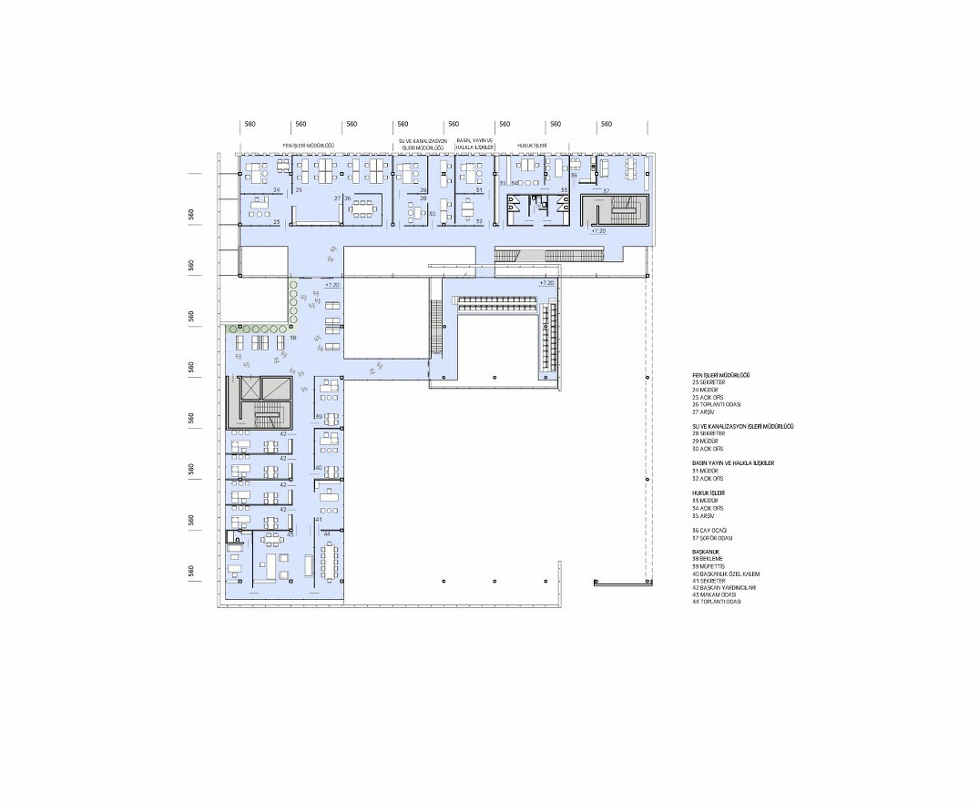
2.KAT PLANI
20/25
Paylaş
Resmi Orjinal Boyutunda Göster
Gazipaşa Belediye Hizmet Binası Yarışması - 2.Mansiyon
Proje Yeri: Antalya
Proje Ofisi: SN Mimarlık
Proje Tipi: Belediye Hizmet Binası
Proje Tipi Grubu: 2. Mansiyon
Tasarım Ekibi: Süleyman Akkaş, Nihal Şenkaya Akkaş
Yardımcı: Ceren Temel