10/10
Paylaş
Resmi Orjinal Boyutunda Göster
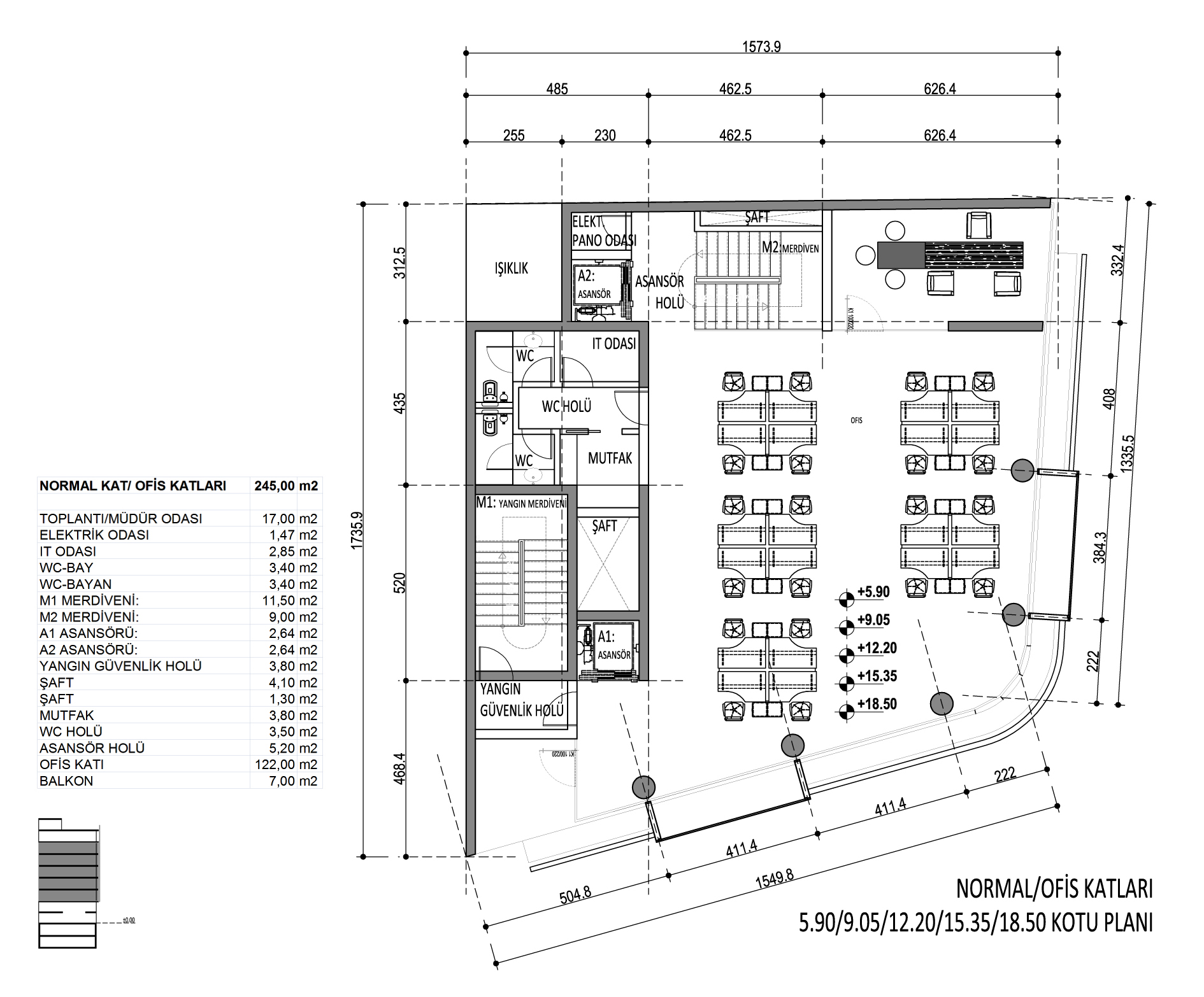
Garanti Bankası Mimar Kemalettin Şubesi – Proje 2
Proje Yeri: İzmir, Konak
Proje Tipi: Ofis
Tasarım Ekibi: Barış Başat, Lucas Oteyza
İşveren: Garanti Bankası
Statik Projesi: NU Mühendislik
Proje Başlangıç Yılı: 2010
Proje Bitiş Yılı: 2010
Arsa Alanı: 490 m²
Toplam İnşaat Alanı: 1796 m²