9/10
Paylaş
Resmi Orjinal Boyutunda Göster
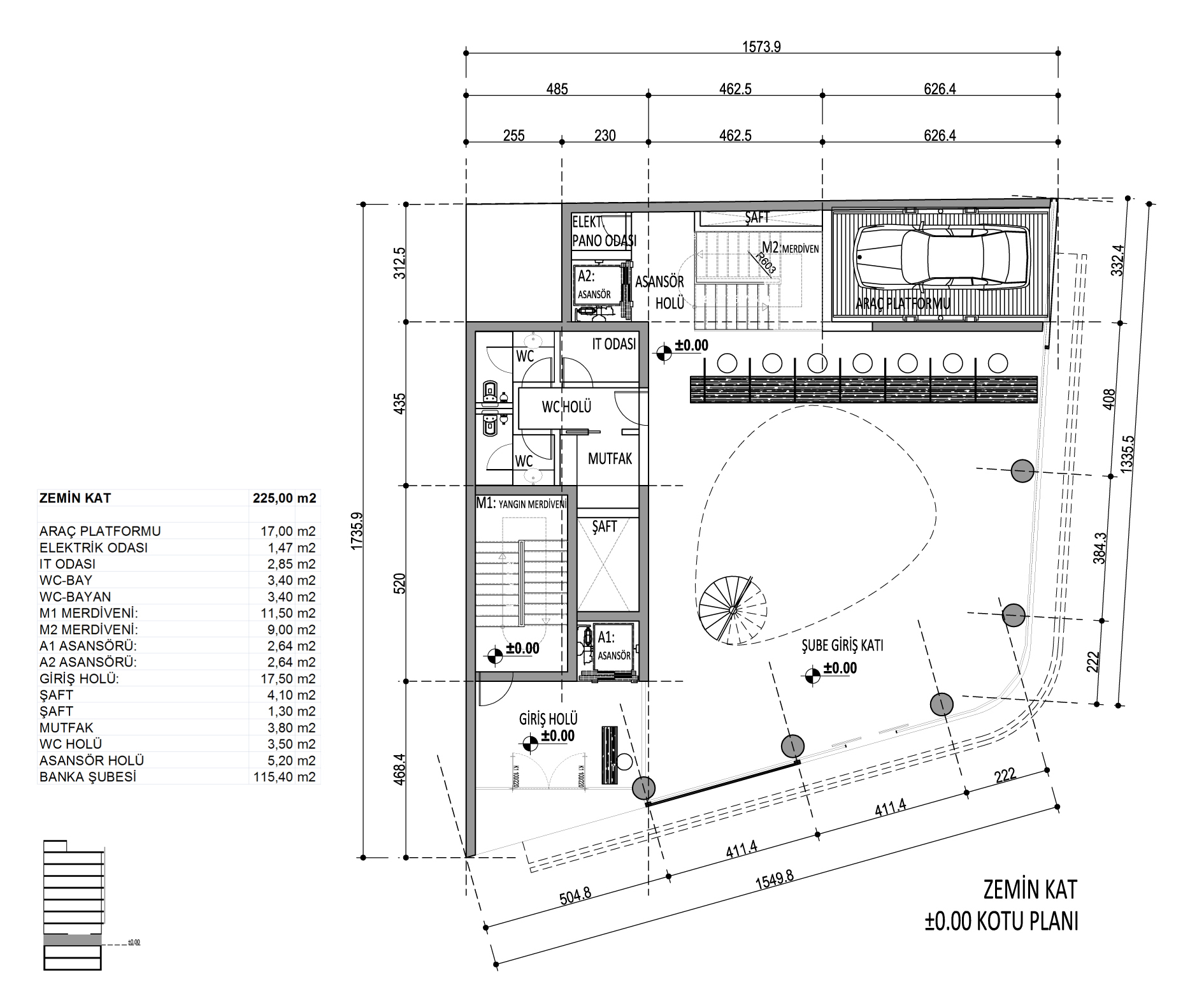
Garanti Bankası Mimar Kemalettin Şubesi – Proje 2
Project Location: İzmir, Konak
Project Type: Offices
Tasarım Ekibi: Barış Başat, Lucas Oteyza
Employer: Garanti Bankası
Structural Project: NU Mühendislik
Project Start Date: 2010
Project End Date: 2010
Building Plot Area: 490 m²
Total Construction Area: 1796 m²