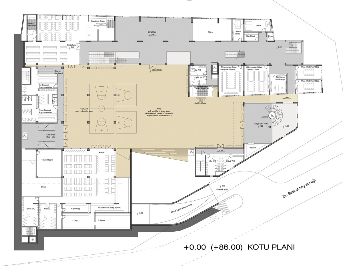
0,00 Kotu Planı
14/25
Paylaş
Resmi Orjinal Boyutunda Göster
Katılımcı (Burçak Pekin, Hanife Aliefendioğlu, Barış Uçar), Şişli Lisesi Ulusal Mimari Proje Yarışması
Proje Yeri: Şişli, İstanbul
Proje Tipi: Lise / Ortaöğretim
Proje Tipi Grubu: Katılımcı
Tasarım Ekibi: Burçak Pekin, Hanife Aliefendioğlu, Barış Uçar
İşveren: Şişli Belediyesi
Yardımcı: Aslı Nur Pektaş
Proje Başlangıç Yılı: 2011
Proje Bitiş Yılı: 2011
Arsa Alanı: 6.400 m²
Toplam İnşaat Alanı: 19.700 m²