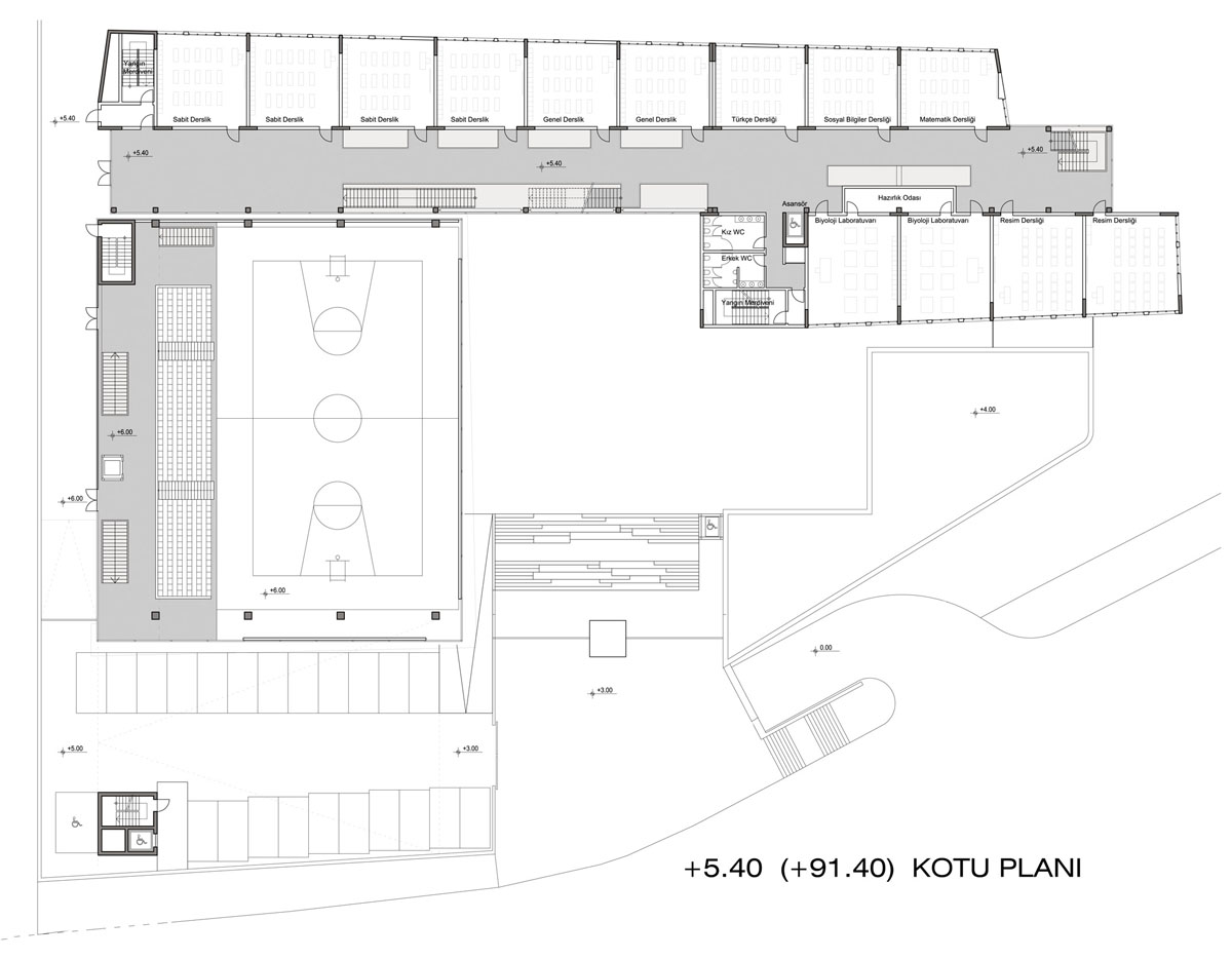
+5,40 Kotu Planı
16/25
Paylaş
Resmi Orjinal Boyutunda Göster
Katılımcı (Burçak Pekin, Hanife Aliefendioğlu, Barış Uçar), Şişli Lisesi Ulusal Mimari Proje Yarışması
Project Location: Şişli, İstanbul
Project Type: High School
Proje Tipi Grubu: Katılımcı
Tasarım Ekibi: Burçak Pekin, Hanife Aliefendioğlu, Barış Uçar
Employer: Şişli Belediyesi
Yardımcı: Aslı Nur Pektaş
Project Start Date: 2011
Project End Date: 2011
Building Plot Area: 6.400 m²
Total Construction Area: 19.700 m²